$4450000
Price cut: $545K (03-13-2026)
6 Bed
8 Bath
9948 SqFt
133 DOM
Built: 2000
Status: Active
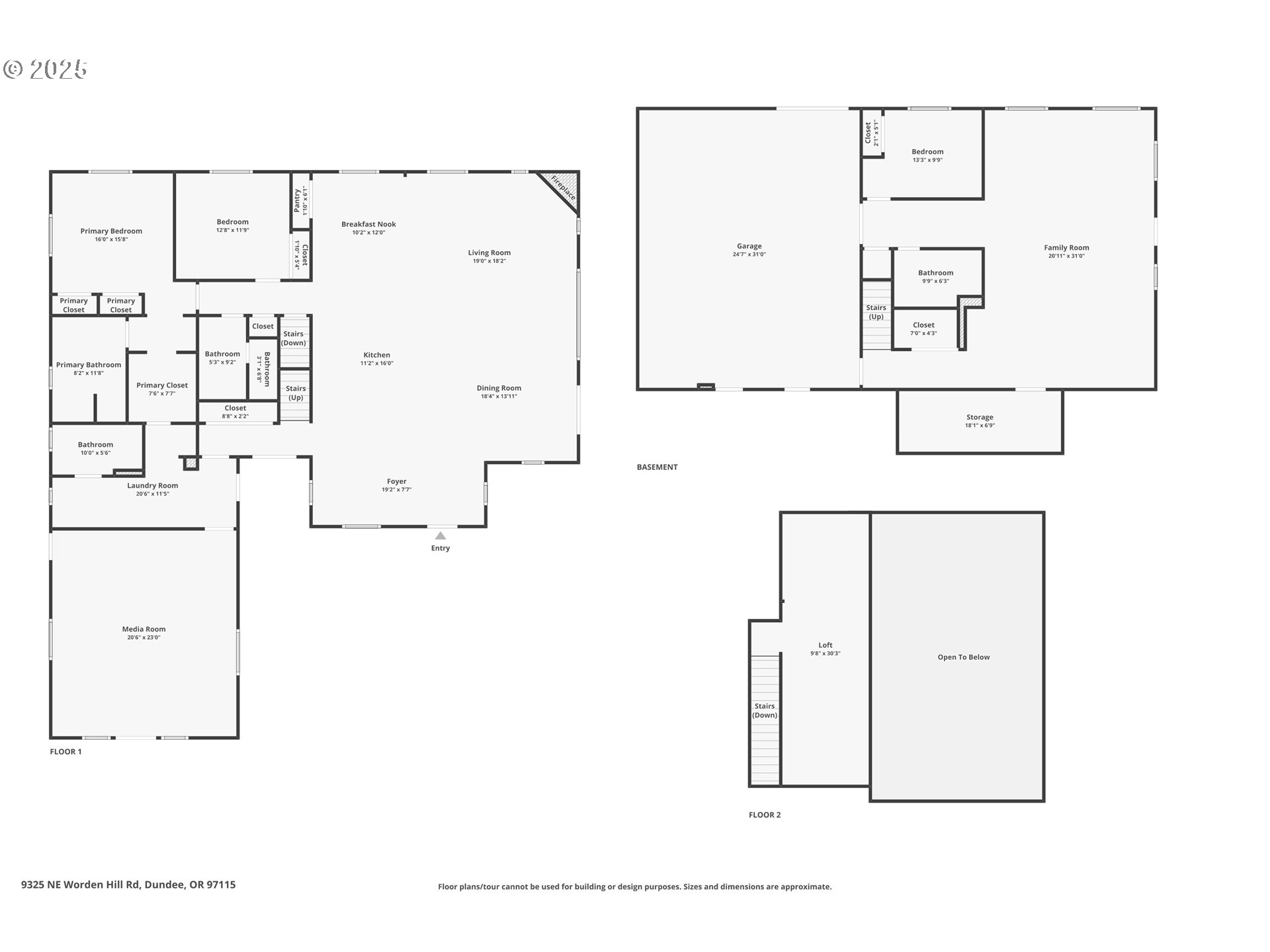
Oregon Vineyard Property is pleased to present this historically significant vineyard property with one of the best locations in wine country. Originally planted in 1970, the property features the oldest vineyard block on Worden Hill Rd., the second oldest in Dundee following the Eyrie Vineyard's South Block and is the fifth-oldest vineyard in Oregon. The property is 41.43 total acres with 11+ planted to vineyard and an additional 10-12 of prime vineyard ground. The 5,254 sq. ft. timber framed retreat center is a beautiful building with vaulted ceilings, open concept main floor, oversized rooms and a lower level work space where wine could be made or other hobbies pursued. The structure could serve as either a home or hospitality center. Both the retreat and 2,484 sq. ft. farm house offer magnificent views of the Dundee Hills and Willamette Valley with Mt. Hood and Mt. Jefferson beyond. The farm house was likely the first on Worden Hill Rd., with a setting this spectacular it is no surprise this location was chosen. The farm house has been updated and modernized over the years and features an addition with master bedroom and en-suite bath. The 2,210 sq. ft. historic barn / tasting room sits amongst the vines and is both welcoming and charming. The property also features 16+ acres of forested land reminiscent of a state park. A year round natural spring feeds into a concrete storage cube, water rights associated with the spring have a priority date of June 6th 1965. There is another year round spring below the retreat that fills a small pond. The pond offers potential to pursue a surface water right and develop a reservoir for irrigation. The property has S, SE & SW aspect, 550'-680' elevation with Jory soils throughout. Rarely does a property with this strong of direct-to-consumer wine sales potential come to market. This is an opportunity to launch or expand your wine business in the epicenter of the Oregon wine industry, on one of the hills where it all started.
Listing Provided Courtesy of Matthew Tackett, Premiere Property Group, LLC
211773079
SingleFamilyResidence
133 DOM
6
41.43 acres
8
9948
2000
EFU
Yamhill
81636
Dundee
Chehalem Valley
Newberg
Residential
SingleFamilyResidence
TOWNSHIP 3S RANGE 3W SECTION 27 TAXLOT 02800 SUBDIVISIONNAME CHEH
Listing Provided Courtesy of Matthew Tackett, Premiere Property Group, LLC
PDXA1 Realty Group data last checked: May 02, 2026 06:33 | Listing last modified Mar 13, 2026 13:11,
Source:
300
8048
1600
9948
Appraisal
8348
2/Gas
6
6
2
8
Composition
1, Detached
Farmhouse,TimberFrame
OffStreet
3
2000
No
WoodSiding
PartiallyFinished
RVParking
PartiallyFinished
ConcretePerimeter
DoublePaneWindows
BuiltinRefrigerator, FreeStandingRange, StainlessSteelAppliance, Tile
Granite, VaultedCeiling, WoodFloors
Deck, Fenced, Patio, Porch, SecondResidence, SecurityLights, Workshop, Yard
CentralAir, MiniSplit
Electricity
ForcedAir, MiniSplit
StandardSeptic
Electricity
WoodBurning
6652.58
0
Cash,FarmCreditService,Other,USDALoan
10-31-2025
8500
No
No
133
183
Cash,FarmCreditService,Other,USDALoan
$4,995,000
$4,450,000
Mar 13, 2026 13:11
Listing courtesy of Premiere Property Group, LLC.
The content relating to real estate for sale on this site comes in part from the IDX program of the RMLS of Portland, Oregon.
Real Estate listings held by brokerage firms other than this firm are marked with the RMLS logo, and
detailed information about these properties include the name of the listing's broker.
Listing content is copyright © 2019 RMLS of Portland, Oregon.
All information provided is deemed reliable but is not guaranteed and should be independently verified.
PDXA1 Realty Group data last checked: May 02, 2026 06:33 | Listing last modified Mar 13, 2026 13:11.
Some properties which appear for sale on this web site may subsequently have sold or may no longer be available.
Venkat is a very good negotiator. He was quick to respond, when I had questions. He came to all the meetings with the seller and provided valuable inputs on inspections and mortgage options. Overall, I was impressed and would love to work with him again.
Venkat is very professional and has tremendous knowledge in the real estate industry. He was always available to discuss and made time to visit the construction site several times during the course. I was looking at a new construction and had to wait for the property to be built.
Muthu has good knowledge about the community and understands the needs of his customers. He helped us sell our house in record time and followed up with the buyer and the agent until the complete closure. We received multiple offers and Muthu negotiated well and helped us decide on the buyer.
Venkat Muthu is a wonderful person to go with. Very friendly and advices as per the need and gives his service and support where and when needed and some times going beyond. Really happy to share the review and I highly recommend if anyone is looking for any homes.
Venkat is great to work with as realtor. He is very patient and listens to the requests of the buyer or seller and doesn’t push as t any point of time. He has a good understanding of the market situation and location for investments as well. All this comes from experience with him recently buying a home.
Whether you’re looking to buy your dream home, sell your property for the best price, or explore investment opportunities, PDXA1 Realty Group is here to help. With expertise, personalized service, and a commitment to your goals, we’ll guide you every step of the way. Contact us today at (971) 330-1856 let’s start the conversation!
© PDXA1 Realty Group | Powered by Taigha