$749000
Price cut: $10K (03-17-2026)
3 Bed
2 Bath
1774 SqFt
33 DOM
Built: 1972
Status: Active
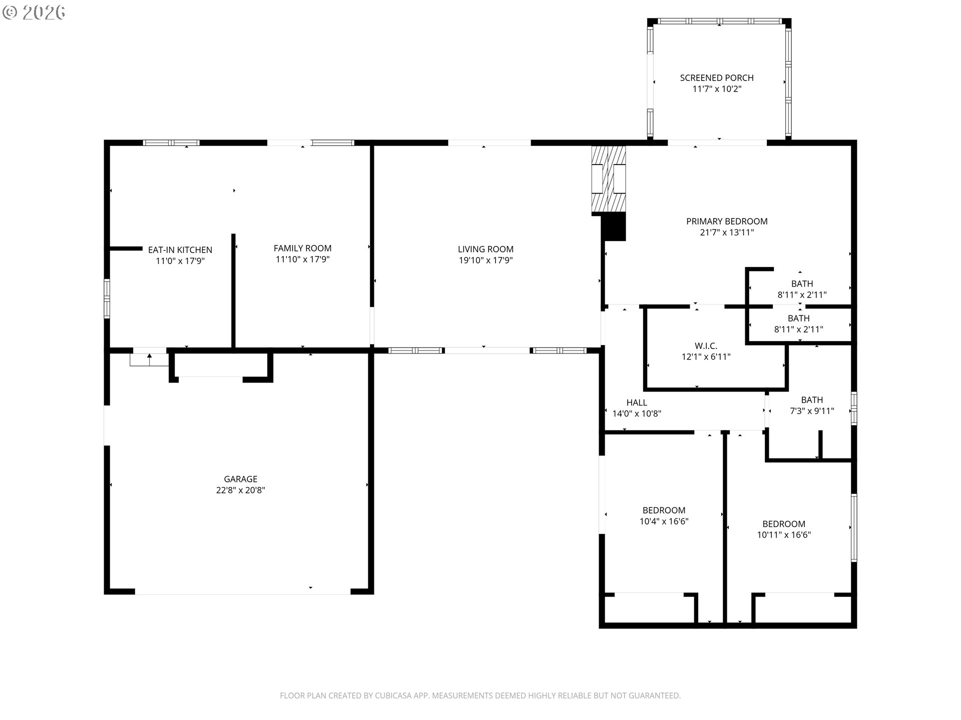
Here it Is! Updated, Single-level home located on Michelbook Country Club along the 9th fairway. Golf course views provide privacy, with the cart path on the opposite side of the fairway. This 3-bedroom, 2-bath home offers comfortable one-level living in a desirable setting. Beautiful double doors at the front of the home open to an entry with refinished cherry floors. The space leads into a versatile living room that can serve as a combined living and dining area. The room features a gas fireplace, built-ins, and sliding glass doors overlooking the fairway. The kitchen is well-appointed with a Dacor microwave and gas range, Corian countertops and sink, tile backsplash, a KitchenAid refrigerator, and new window shades. Refinished wood floors continue through the kitchen, family room, and eating nook, which has sliding glass doors to the covered back deck. The large primary bedroom includes new carpet, an ensuite, gas fireplace, and sliding doors to a bright four-season sunroom. The home also features two water heaters for added convenience. The front and back yards are beautifully maintained, with a good-sized covered deck in back and ample side yards—perfect for outdoor entertaining and enjoying the golf course setting.
Listing Provided Courtesy of Stacy Martin, Baker Street Real Estate, LLC
614042614
SingleFamilyResidence
33 DOM
3
10018.8 SqFt
2
1774
1972
R-1
Yamhill
140797
Memorial
Duniway
McMinnville
Residential
SingleFamilyResidence
TOWNSHIP 4S RANGE 4W SECTION 17 QTR B QQTR D TAXLOT 02601 LOT 1 B
Listing Provided Courtesy of Stacy Martin, Baker Street Real Estate, LLC
PDXA1 Realty Group data last checked: Apr 03, 2026 23:01 | Listing last modified Mar 17, 2026 10:14,
Source:
0
1774
0
1774
Yamhill Co
1774
2/Gas
3
2
0
2
Composition
2, Attached
Stories1,NWContemporary
Driveway,OnStreet
1
1972
No
Panel, WoodSiding
CrawlSpace
CrawlSpace
ConcretePerimeter
AluminumFrames,Doubl
BuiltinFeatures, Fireplace, LivingRoomDiningRoomCombo, SlidingDoors
Dishwasher, FreeStandingGasRange, FreeStandingRefrigerator, Microwave, SolidSurfaceCountertop, StainlessS
Sprinkler, WalltoWallCarpet, WasherDryer, WoodFloors
CoveredDeck, Sprinkler, Yard
MinimalSteps, OneLevel
HeatPump
Gas
HeatPump
PublicSewer
Gas
Electricity, Gas
5886.7
0
Cash,Conventional,VALoan
02-12-2026
No
No
33
50
Cash,Conventional,VALoan
$759,000
$749,000
Mar 17, 2026 10:14
Listing courtesy of Baker Street Real Estate, LLC.
The content relating to real estate for sale on this site comes in part from the IDX program of the RMLS of Portland, Oregon.
Real Estate listings held by brokerage firms other than this firm are marked with the RMLS logo, and
detailed information about these properties include the name of the listing's broker.
Listing content is copyright © 2019 RMLS of Portland, Oregon.
All information provided is deemed reliable but is not guaranteed and should be independently verified.
PDXA1 Realty Group data last checked: Apr 03, 2026 23:01 | Listing last modified Mar 17, 2026 10:14.
Some properties which appear for sale on this web site may subsequently have sold or may no longer be available.
Venkat is a very good negotiator. He was quick to respond, when I had questions. He came to all the meetings with the seller and provided valuable inputs on inspections and mortgage options. Overall, I was impressed and would love to work with him again.
Venkat is very professional and has tremendous knowledge in the real estate industry. He was always available to discuss and made time to visit the construction site several times during the course. I was looking at a new construction and had to wait for the property to be built.
Muthu has good knowledge about the community and understands the needs of his customers. He helped us sell our house in record time and followed up with the buyer and the agent until the complete closure. We received multiple offers and Muthu negotiated well and helped us decide on the buyer.
Venkat Muthu is a wonderful person to go with. Very friendly and advices as per the need and gives his service and support where and when needed and some times going beyond. Really happy to share the review and I highly recommend if anyone is looking for any homes.
Venkat is great to work with as realtor. He is very patient and listens to the requests of the buyer or seller and doesn’t push as t any point of time. He has a good understanding of the market situation and location for investments as well. All this comes from experience with him recently buying a home.
Whether you’re looking to buy your dream home, sell your property for the best price, or explore investment opportunities, PDXA1 Realty Group is here to help. With expertise, personalized service, and a commitment to your goals, we’ll guide you every step of the way. Contact us today at (971) 330-1856 let’s start the conversation!
© PDXA1 Realty Group | Powered by Taigha