$599000
Price cut: $20K (03-24-2026)
4 Bed
2.5 Bath
2701 SqFt
12 DOM
Built: 2023
Status: Active
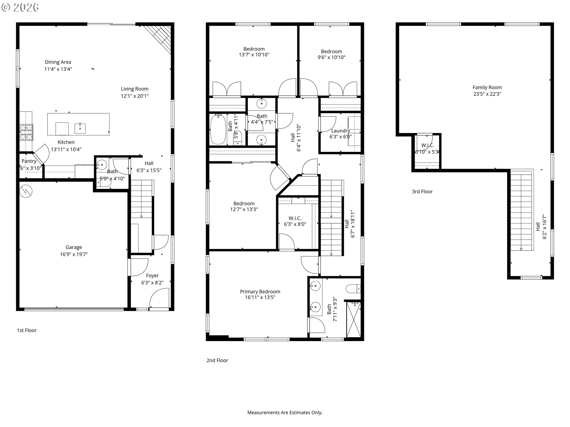
Experience the perfect blend of modern luxury and easy living in this stunning 2,701. Newberg home. Completed in 2023, this 4-bedroom, 2.5-bath home is perfect for someone desiring space and low maintenance. With an acceptable offer, all furniture and decorations (except furniture in bedroom on the NW corner, see picture 25) can be included in sale. Washer and dryer are included with a full price offer. The main level features a bright, open-concept floor plan. Enjoy a chef’s kitchen with quartz countertops, massive island and breakfast bar, stainless steel appliances, and walk-in pantry. High-end laminate flooring throughout the living area offers style and durability.Upstairs you'll find a vaulted primary suite complete with a private en-suite bath and walk-in closet, three more spacious bedrooms, and a convenient laundry room. The "wow" factor is the huge bonus room on the third floor — perfect for entertainment, home theater, gym, or creative studio. This move-in ready home features a low-maintenance yard, and puts you just minutes away from Newberg’s famous wineries, top-rated schools, and local parks.
Listing Provided Courtesy of Daniel Roberts, Premiere Property Group, LLC
411455476
SingleFamilyResidence
12 DOM
4
3049.2 SqFt
2.5
2701
2023
Yamhill
713194
Antonia Crater
Chehalem Valley
Newberg
Residential
SingleFamilyResidence
LOT 45 KINGS LANDING PHASE 3
Listing Provided Courtesy of Daniel Roberts, Premiere Property Group, LLC
PDXA1 Realty Group data last checked: Apr 23, 2026 03:04 | Listing last modified Mar 24, 2026 13:21,
Source:
1239
759
0
2701
Trio
1998
1/Gas
4
2
1
2.5
Composition
2, Attached, ExtraDeep
CustomStyle,TriLevel
Driveway,OffStreet
3
2023
No
CementSiding, CulturedStone, LapSiding
CrawlSpace
CrawlSpace
ConcretePerimeter
DoublePaneWindows,Vi
Insurance
Fireplace, GreatRoom
Dishwasher, Disposal, FreeStandingGasRange, FreeStandingRefrigerator, Island, Microwave, Pantry, PlumbedFor
Floor3rd, Furnished, GarageDoorOpener, LaminateFlooring, LuxuryVinylPlank, VaultedCeiling, WalltoWallCarpe
Fenced, Patio, Sprinkler
CentralAir
Gas
ForcedAir
PublicSewer
Gas
Gas
4705.63
1
100 / Annually
Cash,Conventional,FHA,VALoan
03-12-2026
No
No
12
42
Cash,Conventional,FHA,VALoan
$619,000
$599,000
Mar 24, 2026 13:21
Listing courtesy of Premiere Property Group, LLC.
The content relating to real estate for sale on this site comes in part from the IDX program of the RMLS of Portland, Oregon.
Real Estate listings held by brokerage firms other than this firm are marked with the RMLS logo, and
detailed information about these properties include the name of the listing's broker.
Listing content is copyright © 2019 RMLS of Portland, Oregon.
All information provided is deemed reliable but is not guaranteed and should be independently verified.
PDXA1 Realty Group data last checked: Apr 23, 2026 03:04 | Listing last modified Mar 24, 2026 13:21.
Some properties which appear for sale on this web site may subsequently have sold or may no longer be available.
Venkat is a very good negotiator. He was quick to respond, when I had questions. He came to all the meetings with the seller and provided valuable inputs on inspections and mortgage options. Overall, I was impressed and would love to work with him again.
Venkat is very professional and has tremendous knowledge in the real estate industry. He was always available to discuss and made time to visit the construction site several times during the course. I was looking at a new construction and had to wait for the property to be built.
Muthu has good knowledge about the community and understands the needs of his customers. He helped us sell our house in record time and followed up with the buyer and the agent until the complete closure. We received multiple offers and Muthu negotiated well and helped us decide on the buyer.
Venkat Muthu is a wonderful person to go with. Very friendly and advices as per the need and gives his service and support where and when needed and some times going beyond. Really happy to share the review and I highly recommend if anyone is looking for any homes.
Venkat is great to work with as realtor. He is very patient and listens to the requests of the buyer or seller and doesn’t push as t any point of time. He has a good understanding of the market situation and location for investments as well. All this comes from experience with him recently buying a home.
Whether you’re looking to buy your dream home, sell your property for the best price, or explore investment opportunities, PDXA1 Realty Group is here to help. With expertise, personalized service, and a commitment to your goals, we’ll guide you every step of the way. Contact us today at (971) 330-1856 let’s start the conversation!
© PDXA1 Realty Group | Powered by Taigha