$749900
3 Bed
2 Bath
2021 SqFt
1 DOM
Built: 2004
Status: Active
Open House
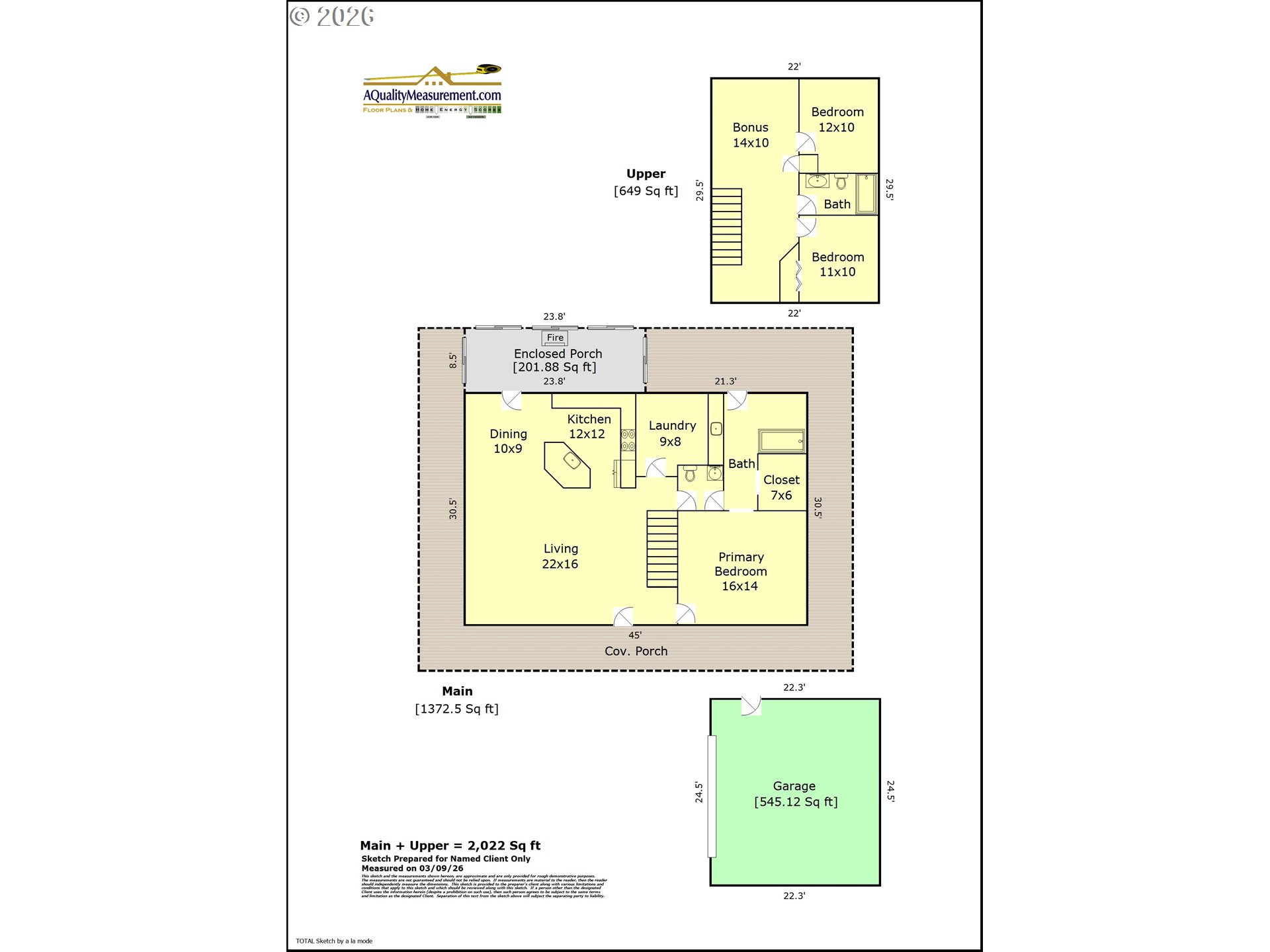
OPEN THIS SATURDAY AND SUNDAY! Set back off the street on just under a half acre, this custom-built log cabin feels like you are entering your own world while still living in the city. Built in 2004 from hand-scribed Douglas fir log rounds, the home is full of warmth and character while still being modern and functional. The primary suite is located on the main floor, and the sunroom, with its own wood stove, looks out over the front yard and is perfect for early morning coffee and evening conversations. The loft space works well for reading, relaxing, or as a home office. Nearly 1,200 square feet of covered porches wrap the home. The property includes a large detached two-car garage, walk-in basement storage, and mature landscaping that adds to the sense of privacy. It’s a one-of-a-kind home that offers the charm of a true log cabin while still being modern and livable. Washington County taxes.
Listing Provided Courtesy of Chris Mackovjak, Realty Portland
466774053
SingleFamilyResidence
1 DOM
3
0.44 acres
2
2021
2004
Washington
R229577
Metzger
Fowler
Tigard
Residential
SingleFamilyResidence
METZGER ACRE TRACTS, BLOCK 18, LOT PT 5, ACRES 0.44
Listing Provided Courtesy of Chris Mackovjak, Realty Portland
PDXA1 Realty Group data last checked: Mar 20, 2026 22:44 | Listing last modified Mar 20, 2026 15:09,
Source:
Sat, Mar 21st, 11AM to 1PM
Sun, Mar 22nd, 1PM to 3PM
649
1372
0
2021
Measure
2021
3/Gas
3
2
0
2
Tile
2, Detached, Oversized
Cabin,Log
Driveway,OffStreet
2
2004
No
Log, WoodSiding
StorageSpace
StorageSpace
ConcretePerimeter
DoublePaneWindows,Vi
Dishwasher, Disposal, FreeStandingGasRange, FreeStandingRefrigerator, GasAppliances, RangeHood, StainlessS
Skylight, WasherDryer
None
Electricity
GasStove, Zoned
PublicSewer
Electricity
Electricity, Gas
6729.78
0
Cash,Conventional,FHA,VALoan
03-19-2026
No
No
1
1
Cash,Conventional,FHA,VALoan
$749,900
$749,900
Mar 20, 2026 15:09
Listing courtesy of Realty Portland.
The content relating to real estate for sale on this site comes in part from the IDX program of the RMLS of Portland, Oregon.
Real Estate listings held by brokerage firms other than this firm are marked with the RMLS logo, and
detailed information about these properties include the name of the listing's broker.
Listing content is copyright © 2019 RMLS of Portland, Oregon.
All information provided is deemed reliable but is not guaranteed and should be independently verified.
PDXA1 Realty Group data last checked: Mar 20, 2026 22:44 | Listing last modified Mar 20, 2026 15:09.
Some properties which appear for sale on this web site may subsequently have sold or may no longer be available.
Venkat is a very good negotiator. He was quick to respond, when I had questions. He came to all the meetings with the seller and provided valuable inputs on inspections and mortgage options. Overall, I was impressed and would love to work with him again.
Venkat is very professional and has tremendous knowledge in the real estate industry. He was always available to discuss and made time to visit the construction site several times during the course. I was looking at a new construction and had to wait for the property to be built.
Muthu has good knowledge about the community and understands the needs of his customers. He helped us sell our house in record time and followed up with the buyer and the agent until the complete closure. We received multiple offers and Muthu negotiated well and helped us decide on the buyer.
Venkat Muthu is a wonderful person to go with. Very friendly and advices as per the need and gives his service and support where and when needed and some times going beyond. Really happy to share the review and I highly recommend if anyone is looking for any homes.
Venkat is great to work with as realtor. He is very patient and listens to the requests of the buyer or seller and doesn’t push as t any point of time. He has a good understanding of the market situation and location for investments as well. All this comes from experience with him recently buying a home.
Whether you’re looking to buy your dream home, sell your property for the best price, or explore investment opportunities, PDXA1 Realty Group is here to help. With expertise, personalized service, and a commitment to your goals, we’ll guide you every step of the way. Contact us today at (971) 330-1856 let’s start the conversation!
© PDXA1 Realty Group | Powered by Taigha