$500000
Price cut: $25K (04-13-2026)
3 Bed
2 Bath
1130 SqFt
12 DOM
Built: 2003
Status: Active
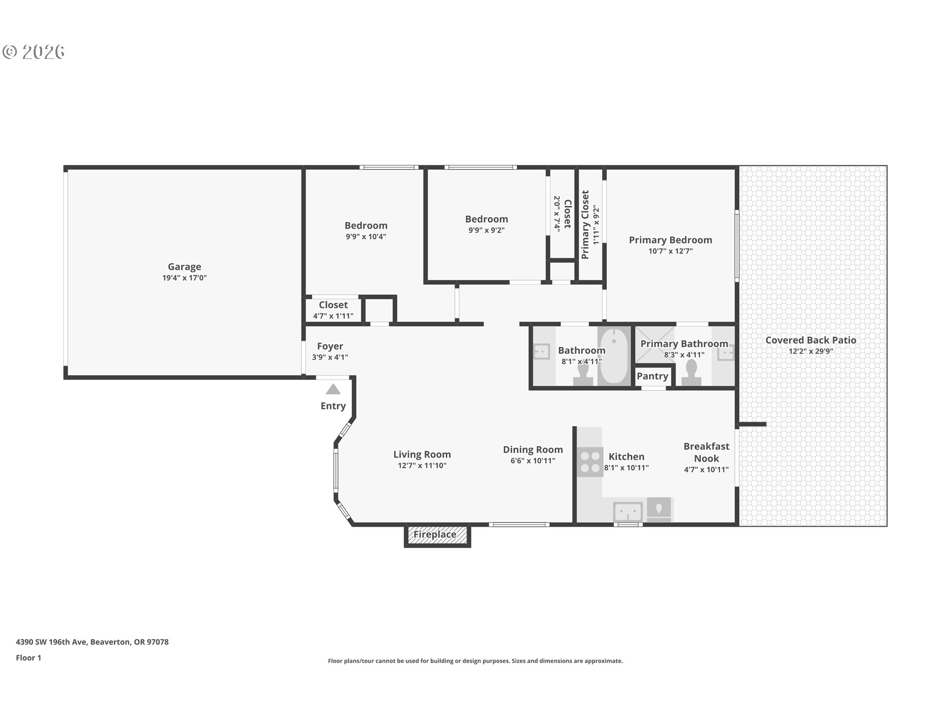
Move-in ready and dialed in — now offered at an improved price. This Beaverton ranch sits on a spacious 0.33-acre lot with mature landscaping that feels more like a private park than a backyard.The covered patio sets the stage for year-round indoor/outdoor living — host friends, start that garden, or just unwind in your own space. The detached shed with electricity is a standout bonus, perfect for a workshop, hobby space, or a separate office setup.The big stuff is already done: new furnace and water heater (2024), plus a new roof and VELUX skylights (2025). Inside, you’ll find fresh flooring, interior paint, updated countertops, new dishwasher and range, new toilets, modern lighting, and refreshed hardware throughout. Clean, updated, and truly move-in ready.Set on a quiet street in a sought-after Beaverton neighborhood known for larger lots, you’re minutes from parks, trails, shopping, dining, and major employers. Access to Aloha Swim Center and quick Hwy 26 access make commuting easy without sacrificing that comfortable suburban feel.Space, updates, location — and now priced to move. Mortgage savings may be available for buyers of this listing.
Listing Provided Courtesy of Cinnamin Webb, Redfin
508641932
SingleFamilyResidence
12 DOM
3
2
1130
2003
Washington
R363546
Kinnaman
Mountain View
Aloha
Residential
SingleFamilyResidence
WHEELER'S SUBDIVISION, LOT PT 3, ACRES 0.33
Listing Provided Courtesy of Cinnamin Webb, Redfin
PDXA1 Realty Group data last checked: Apr 29, 2026 16:17 | Listing last modified Apr 14, 2026 06:49,
Source:
0
1130
0
1130
Pub Record
1130
1/Gas
3
2
0
2
Composition
2, Attached
Stories1,Ranch
Driveway,OffStreet
1
2003
No
Other
CrawlSpace
CrawlSpace
Other
AluminumFrames,Doubl
BayWindow, Fireplace, LivingRoomDiningRoomCombo
Dishwasher, Disposal, FreeStandingRange, Pantry, Quartz, RangeHood, SolidSurfaceCountertop, StainlessSteelA
GarageDoorOpener, HookupAvailable, Laundry, LuxuryVinylPlank, Quartz, Skylight, VaultedCeiling
CoveredPatio, CrossFenced, Fenced, Garden, Outbuilding, Patio, PublicRoad, RaisedBeds, ToolShed, Workshop, Yar
GarageonMain, GroundLevel, MainFloorBedroomBath, MinimalSteps, NaturalLighting, OneLevel, Parking, WalkinSh
HeatPump
Electricity, Tank
ForcedAir, HeatPump
PublicSewer
Electricity, Tank
Electricity
3242.09
0
Cash,Conventional,FHA,VALoan
04-02-2026
No
No
12
27
Cash,Conventional,FHA,VALoan
$525,000
$500,000
Apr 14, 2026 06:49
Listing courtesy of Redfin.
The content relating to real estate for sale on this site comes in part from the IDX program of the RMLS of Portland, Oregon.
Real Estate listings held by brokerage firms other than this firm are marked with the RMLS logo, and
detailed information about these properties include the name of the listing's broker.
Listing content is copyright © 2019 RMLS of Portland, Oregon.
All information provided is deemed reliable but is not guaranteed and should be independently verified.
PDXA1 Realty Group data last checked: Apr 29, 2026 16:17 | Listing last modified Apr 14, 2026 06:49.
Some properties which appear for sale on this web site may subsequently have sold or may no longer be available.
Venkat is a very good negotiator. He was quick to respond, when I had questions. He came to all the meetings with the seller and provided valuable inputs on inspections and mortgage options. Overall, I was impressed and would love to work with him again.
Venkat is very professional and has tremendous knowledge in the real estate industry. He was always available to discuss and made time to visit the construction site several times during the course. I was looking at a new construction and had to wait for the property to be built.
Muthu has good knowledge about the community and understands the needs of his customers. He helped us sell our house in record time and followed up with the buyer and the agent until the complete closure. We received multiple offers and Muthu negotiated well and helped us decide on the buyer.
Venkat Muthu is a wonderful person to go with. Very friendly and advices as per the need and gives his service and support where and when needed and some times going beyond. Really happy to share the review and I highly recommend if anyone is looking for any homes.
Venkat is great to work with as realtor. He is very patient and listens to the requests of the buyer or seller and doesn’t push as t any point of time. He has a good understanding of the market situation and location for investments as well. All this comes from experience with him recently buying a home.
Whether you’re looking to buy your dream home, sell your property for the best price, or explore investment opportunities, PDXA1 Realty Group is here to help. With expertise, personalized service, and a commitment to your goals, we’ll guide you every step of the way. Contact us today at (971) 330-1856 let’s start the conversation!
© PDXA1 Realty Group | Powered by Taigha