$649900
3 Bed
2 Bath
2124 SqFt
5 DOM
Built: 1948
Status: Active
Open House
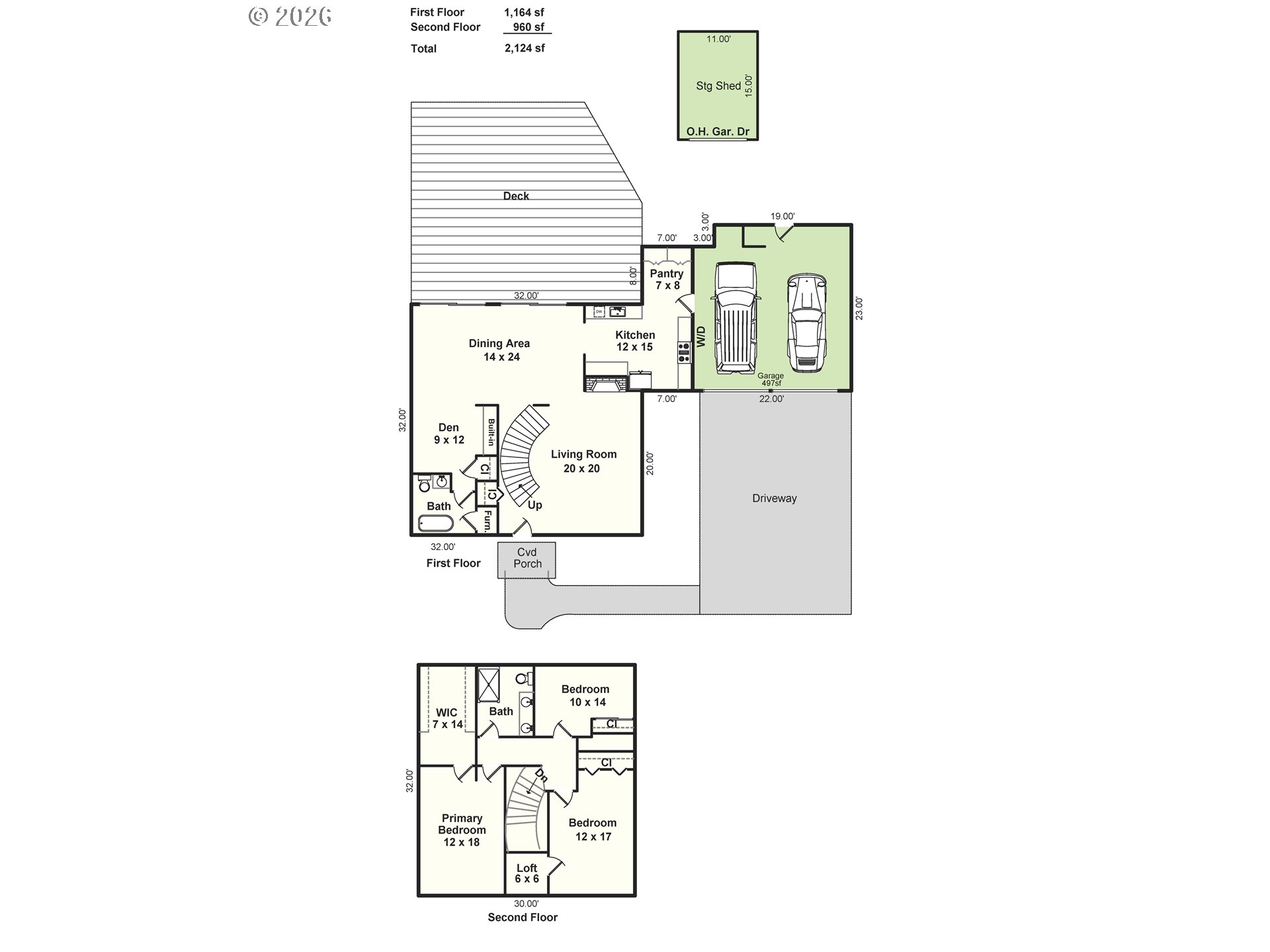
*OPEN SUNDAY 3/15 FROM 2-4 PM* Beautifully updated, light-filled Cape Cod farmhouse with modern open floor plan on a serene .55-acre lot. Covered front porch opens to tiled foyer with wooden staircase and decorative wrought iron railing. Open living room features hardwood floors, large picture window, fireplace, electronic blinds, and surround sound. Formal dining room with hardwood floors, wall of windows, and double sliders to expansive deck and backyard. Adjacent den/bar with built-ins. Main-level bath remodeled with heated tile floors, soaking tub, chevron tile walls, and linen closet. Kitchen remodeled with Quartz counters, white subway backsplash, heated tile floors, stainless steel appliances, and wall of storage with built-in pantry/laundry pull-outs. Spiral staircase leads to upper-level with new carpet. Primary bedroom with ample walk-in closet and built-ins; two additional bedrooms plus lofted office nook upstairs. Hall bath remodeled with tile floors, shower, and dual vanity. Exceptional outdoor living: large deck with built-in seating, patio with fire pit, raised garden beds, powered studio/storage building, all overlooking yard. Attached two-car garage with epoxy floors and extra laundry. Upgrades include attic insulation, on-demand water heater, Vantage lighting, exterior landscape lighting, smart thermostat and garage doors, and new roof (2024). [Home Energy Score = 7. HES Report at https://rpt.greenbuildingregistry.com/hes/OR10240092]
Listing Provided Courtesy of Karina Stark, Keller Williams Realty Professionals
416124969
SingleFamilyResidence
5 DOM
3
0.55 acres
2
2124
1948
Washington
R760830
McKinney
Evergreen
Glencoe
Residential
SingleFamilyResidence
HILLSBORO GARDEN TRACTS, BLOCK 6, LOT PT 4, ACRES 0.55
Listing Provided Courtesy of Karina Stark, Keller Williams Realty Professionals
PDXA1 Realty Group data last checked: Mar 11, 2026 18:43 | Listing last modified Mar 10, 2026 19:53,
Source:
Sun, Mar 15th, 2PM to 4PM
1164
960
0
2124
Floorplan
2124
1/Gas
3
2
0
2
Composition,Metal
2, Attached
Capecod
Driveway
2
1948
Yes
VinylSiding
CrawlSpace
CrawlSpace
Block,ConcretePerime
DoublePaneWindows
Fireplace, HardwoodFloors
Dishwasher, Disposal, FreeStandingGasRange, FreeStandingRefrigerator, GasAppliances, Pantry, Quartz, RangeH
GarageDoorOpener, HardwoodFloors, HeatedTileFloor, Laundry, Quartz, SoakingTub, TileFloor, WalltoWallCarpet
Deck, FirePit, Patio, Porch, Sprinkler, ToolShed, WaterFeature, Workshop, Yard
GarageonMain, UtilityRoomOnMain
CentralAir, HeatPump
Gas, Tankless
ForcedAir, HeatPump
PublicSewer
Gas, Tankless
Electricity
4810.63
0
Cash,Conventional
03-05-2026
No
No
5
6
Cash,Conventional
$649,900
$649,900
Mar 10, 2026 19:53
Listing courtesy of Keller Williams Realty Professionals.
The content relating to real estate for sale on this site comes in part from the IDX program of the RMLS of Portland, Oregon.
Real Estate listings held by brokerage firms other than this firm are marked with the RMLS logo, and
detailed information about these properties include the name of the listing's broker.
Listing content is copyright © 2019 RMLS of Portland, Oregon.
All information provided is deemed reliable but is not guaranteed and should be independently verified.
PDXA1 Realty Group data last checked: Mar 11, 2026 18:43 | Listing last modified Mar 10, 2026 19:53.
Some properties which appear for sale on this web site may subsequently have sold or may no longer be available.
Venkat is a very good negotiator. He was quick to respond, when I had questions. He came to all the meetings with the seller and provided valuable inputs on inspections and mortgage options. Overall, I was impressed and would love to work with him again.
Venkat is very professional and has tremendous knowledge in the real estate industry. He was always available to discuss and made time to visit the construction site several times during the course. I was looking at a new construction and had to wait for the property to be built.
Muthu has good knowledge about the community and understands the needs of his customers. He helped us sell our house in record time and followed up with the buyer and the agent until the complete closure. We received multiple offers and Muthu negotiated well and helped us decide on the buyer.
Venkat Muthu is a wonderful person to go with. Very friendly and advices as per the need and gives his service and support where and when needed and some times going beyond. Really happy to share the review and I highly recommend if anyone is looking for any homes.
Venkat is great to work with as realtor. He is very patient and listens to the requests of the buyer or seller and doesn’t push as t any point of time. He has a good understanding of the market situation and location for investments as well. All this comes from experience with him recently buying a home.
Whether you’re looking to buy your dream home, sell your property for the best price, or explore investment opportunities, PDXA1 Realty Group is here to help. With expertise, personalized service, and a commitment to your goals, we’ll guide you every step of the way. Contact us today at (971) 330-1856 let’s start the conversation!
© PDXA1 Realty Group | Powered by Taigha