$450000
Price increase: $21K (03-18-2026)
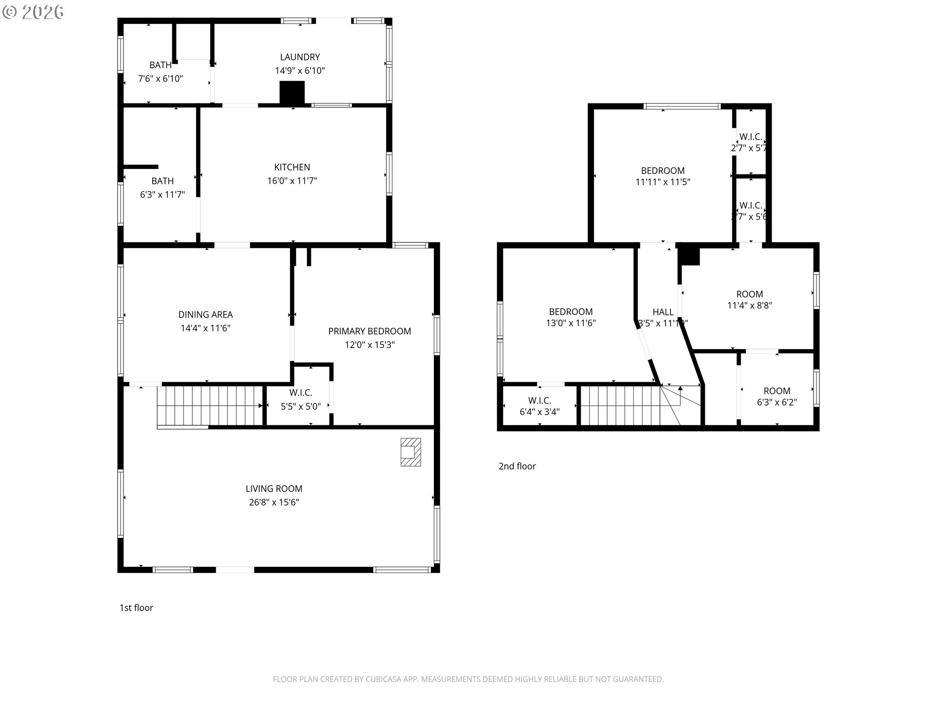
4 Bed
2 Bath
1744 SqFt
26 DOM
Built: 1900
Status: Active
CLASSIC FARMHOUSE near the edge of town in beautiful, historic Echo, Oregon. A wonderful blend of vintage character and modern convenience in this two-story farmhouse home which offers room to breathe and space to grow on the 1.78 acre parcel of land. The home has been updated throughout from the roof, siding and windows to the kitchen, bathrooms and flooring. Included is a 864 sf(m/l) heated/cooled shop perfect for an office, hobby space or shop/garage. A rare property in an excellent location.
Listing Provided Courtesy of Jef Farley, Coldwell Banker Farley Company
434681513
SingleFamilyResidence
26 DOM
4
1.78 acres
2
1744
1900
R1
Umatilla
172735
Echo Schl
Echo Schl
Echo Schl
Residential
SingleFamilyResidence
Tax map 3N2916-DA-03900
Listing Provided Courtesy of Jef Farley, Coldwell Banker Farley Company
PDXA1 Realty Group data last checked: Mar 30, 2026 20:02 | Listing last modified Mar 18, 2026 15:47,
Source:
614
1130
0
1744
County
1744
4
2
0
2
Metal
Farmhouse
OffStreet
2
1900
No
VinylSiding
CrawlSpace
CrawlSpace
ConcretePerimeter
DoublePaneWindows,Vi
Dishwasher, FreeStandingRange
CeilingFan, HighCeilings, VinylFloor
Porch, Workshop, Yard
CentralAir
Electricity
ForcedAir
SepticTank
Electricity
Propane
2726.38
0
Cash,Conventional,FHA,VALoan
03-04-2026
No
No
26
26
Cash,Conventional,FHA,VALoan
$429,000
$450,000
Mar 18, 2026 15:47
Listing courtesy of Coldwell Banker Farley Company.
The content relating to real estate for sale on this site comes in part from the IDX program of the RMLS of Portland, Oregon.
Real Estate listings held by brokerage firms other than this firm are marked with the RMLS logo, and
detailed information about these properties include the name of the listing's broker.
Listing content is copyright © 2019 RMLS of Portland, Oregon.
All information provided is deemed reliable but is not guaranteed and should be independently verified.
PDXA1 Realty Group data last checked: Mar 30, 2026 20:02 | Listing last modified Mar 18, 2026 15:47.
Some properties which appear for sale on this web site may subsequently have sold or may no longer be available.
Venkat is a very good negotiator. He was quick to respond, when I had questions. He came to all the meetings with the seller and provided valuable inputs on inspections and mortgage options. Overall, I was impressed and would love to work with him again.
Venkat is very professional and has tremendous knowledge in the real estate industry. He was always available to discuss and made time to visit the construction site several times during the course. I was looking at a new construction and had to wait for the property to be built.
Muthu has good knowledge about the community and understands the needs of his customers. He helped us sell our house in record time and followed up with the buyer and the agent until the complete closure. We received multiple offers and Muthu negotiated well and helped us decide on the buyer.
Venkat Muthu is a wonderful person to go with. Very friendly and advices as per the need and gives his service and support where and when needed and some times going beyond. Really happy to share the review and I highly recommend if anyone is looking for any homes.
Venkat is great to work with as realtor. He is very patient and listens to the requests of the buyer or seller and doesn’t push as t any point of time. He has a good understanding of the market situation and location for investments as well. All this comes from experience with him recently buying a home.
Whether you’re looking to buy your dream home, sell your property for the best price, or explore investment opportunities, PDXA1 Realty Group is here to help. With expertise, personalized service, and a commitment to your goals, we’ll guide you every step of the way. Contact us today at (971) 330-1856 let’s start the conversation!
© PDXA1 Realty Group | Powered by Taigha