$735000
2 Bed
2 Bath
1236 SqFt
2 DOM
Built: 1973
Status: Active
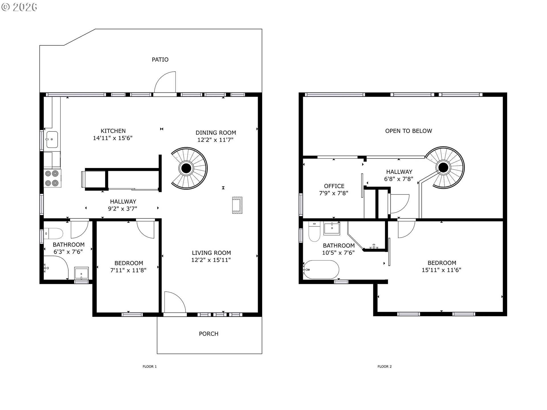
Tucked in amongst the trees, find a delightfully unique Manzanita beach cabin. Lovingly updated over the years with highly skilled hands and cleverly creative design, this exceptionally loved home is ready for its next chapter. The west facing wall of windows bathes the interior in natural light. The surrounding trees provide privacy and tranquility. Delightful woodwork, finely crafted finishes, custom tilework, and built-ins everywhere maximize the small footprint for big living. The propane stove provides cozy heat all winter, while front and back decks let life spill outdoors all summer. Don't miss the clever dual ended drawers, moveable butcher block cabinet, vanity mirror hidden behind the custom cabinetry, office nook in loft with built in shelving... take your time with this one, it's small, but its details are many. Offered fully furnished and turnkey. Expertly maintained. Enjoy the video, digital walkthroughs, and photos here, then contact your broker for an in-person showing today. Proof that the best things really do come in small packages!
Listing Provided Courtesy of Meadow Davis, Home + Sea Realty
635387217
SingleFamilyResidence
2 DOM
2
6098.4 SqFt
2
1236
1973
R-2
Tillamook
93160
Nehalem
Neah-Kah-Nie
Neah-Kah-Nie
Residential
SingleFamilyResidence
See Record
Listing Provided Courtesy of Meadow Davis, Home + Sea Realty
PDXA1 Realty Group data last checked: Mar 26, 2026 15:13 | Listing last modified Mar 24, 2026 18:53,
Source:
478
758
0
1236
County
1236
1/Gas
2
2
0
2
Composition
Cabin,CustomStyle
Driveway,OffStreet
2
1973
No
Cedar, MetalSiding, T111Siding
None
None
ConcretePerimeter
DoublePaneWindows,Wo
FreeStandingRange, FreeStandingRefrigerator, Island, Quartz, RangeHood, SolidSurfaceCountertop
Furnished, HardwoodFloors, LoVOCMaterial, Quartz, Skylight, SoakingTub, VaultedCeiling, WasherDryer
Deck, DogRun, XeriscapeLandscaping
None
Electricity
GasStove, Radiant, WallHeater
PublicSewer
Electricity
Electricity, Propane
4023.78
0
Cash,Conventional
03-24-2026
No
No
2
2
Cash,Conventional
$735,000
$735,000
Mar 24, 2026 18:53
Listing courtesy of Home + Sea Realty.
The content relating to real estate for sale on this site comes in part from the IDX program of the RMLS of Portland, Oregon.
Real Estate listings held by brokerage firms other than this firm are marked with the RMLS logo, and
detailed information about these properties include the name of the listing's broker.
Listing content is copyright © 2019 RMLS of Portland, Oregon.
All information provided is deemed reliable but is not guaranteed and should be independently verified.
PDXA1 Realty Group data last checked: Mar 26, 2026 15:13 | Listing last modified Mar 24, 2026 18:53.
Some properties which appear for sale on this web site may subsequently have sold or may no longer be available.
Venkat is a very good negotiator. He was quick to respond, when I had questions. He came to all the meetings with the seller and provided valuable inputs on inspections and mortgage options. Overall, I was impressed and would love to work with him again.
Venkat is very professional and has tremendous knowledge in the real estate industry. He was always available to discuss and made time to visit the construction site several times during the course. I was looking at a new construction and had to wait for the property to be built.
Muthu has good knowledge about the community and understands the needs of his customers. He helped us sell our house in record time and followed up with the buyer and the agent until the complete closure. We received multiple offers and Muthu negotiated well and helped us decide on the buyer.
Venkat Muthu is a wonderful person to go with. Very friendly and advices as per the need and gives his service and support where and when needed and some times going beyond. Really happy to share the review and I highly recommend if anyone is looking for any homes.
Venkat is great to work with as realtor. He is very patient and listens to the requests of the buyer or seller and doesn’t push as t any point of time. He has a good understanding of the market situation and location for investments as well. All this comes from experience with him recently buying a home.
Whether you’re looking to buy your dream home, sell your property for the best price, or explore investment opportunities, PDXA1 Realty Group is here to help. With expertise, personalized service, and a commitment to your goals, we’ll guide you every step of the way. Contact us today at (971) 330-1856 let’s start the conversation!
© PDXA1 Realty Group | Powered by Taigha