$650000
3 Bed
2 Bath
1984 SqFt
0 DOM
Built: 1927
Status: Active
Open House
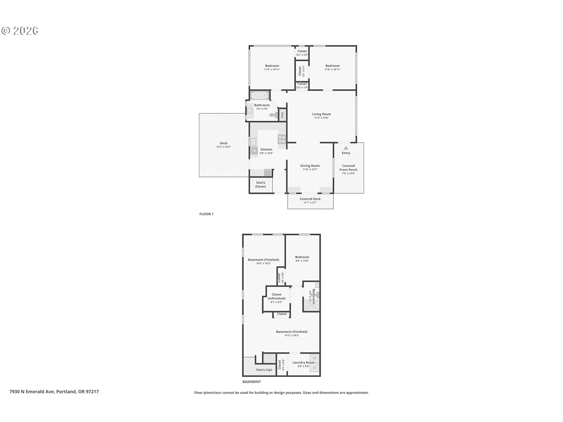
Fantastic fully remodeled home on a corner lot in the desirable Kenton neighborhood! Within minutes to local parks, schools, and other amenities. When the home was remodeled some of the many updates include new plumbing, new sewer line, new A/C, new bathrooms, finished basement, and more. Full update list attached to listing and available to your agent. Oak hardwoods through most of the main level. Remodeled kitchen with gorgeous tile and quartz counters. Super cute dining room with French doors leading to its own little deck. 3rd bedroom and full bath in the basement in addition to family room, bonus area, and laundry room. Head outside to enjoy the stellar landscaping, huge back deck, and large tool shed perfect for additional storage. This move-in ready property is a must see! [Home Energy Score = 4. HES Report at https://rpt.greenbuildingregistry.com/hes/OR10195591]
Listing Provided Courtesy of Aaron Rader, Redfin
572788600
SingleFamilyResidence
0 DOM
3
4356 SqFt
2
1984
1927
Multnomah
R290364
Peninsula
Ockley Green
Jefferson
Residential
SingleFamilyResidence
TRENT ADD 2, BLOCK 1, LOT 17
Listing Provided Courtesy of Aaron Rader, Redfin
PDXA1 Realty Group data last checked: Mar 20, 2026 14:40 | Listing last modified Mar 20, 2026 10:46,
Source:
Sat, Mar 21st, 11AM to 1PM
0
998
986
1984
County
998
1/Gas
3
2
0
2
Composition
Bungalow
2
1927
Yes
WoodSiding
Finished,FullBasement
Finished,FullBasemen
Fireplace, HardwoodFloors
Dishwasher, FreeStandingGasRange, FreeStandingRefrigerator, Pantry, Quartz, RangeHood, Tile
ConcreteFloor, HardwoodFloors, Laundry, Quartz
Deck, Fenced, Porch, Yard
CentralAir
Electricity
ForcedAir
PublicSewer
Electricity
Gas
5640.92
0
Cash,Conventional,FHA,VALoan
03-20-2026
No
No
0
0
Cash,Conventional,FHA,VALoan
$650,000
$650,000
Mar 20, 2026 10:46
Listing courtesy of Redfin.
The content relating to real estate for sale on this site comes in part from the IDX program of the RMLS of Portland, Oregon.
Real Estate listings held by brokerage firms other than this firm are marked with the RMLS logo, and
detailed information about these properties include the name of the listing's broker.
Listing content is copyright © 2019 RMLS of Portland, Oregon.
All information provided is deemed reliable but is not guaranteed and should be independently verified.
PDXA1 Realty Group data last checked: Mar 20, 2026 14:40 | Listing last modified Mar 20, 2026 10:46.
Some properties which appear for sale on this web site may subsequently have sold or may no longer be available.
Venkat is a very good negotiator. He was quick to respond, when I had questions. He came to all the meetings with the seller and provided valuable inputs on inspections and mortgage options. Overall, I was impressed and would love to work with him again.
Venkat is very professional and has tremendous knowledge in the real estate industry. He was always available to discuss and made time to visit the construction site several times during the course. I was looking at a new construction and had to wait for the property to be built.
Muthu has good knowledge about the community and understands the needs of his customers. He helped us sell our house in record time and followed up with the buyer and the agent until the complete closure. We received multiple offers and Muthu negotiated well and helped us decide on the buyer.
Venkat Muthu is a wonderful person to go with. Very friendly and advices as per the need and gives his service and support where and when needed and some times going beyond. Really happy to share the review and I highly recommend if anyone is looking for any homes.
Venkat is great to work with as realtor. He is very patient and listens to the requests of the buyer or seller and doesn’t push as t any point of time. He has a good understanding of the market situation and location for investments as well. All this comes from experience with him recently buying a home.
Whether you’re looking to buy your dream home, sell your property for the best price, or explore investment opportunities, PDXA1 Realty Group is here to help. With expertise, personalized service, and a commitment to your goals, we’ll guide you every step of the way. Contact us today at (971) 330-1856 let’s start the conversation!
© PDXA1 Realty Group | Powered by Taigha