$529000
3 Bed
1 Bath
1506 SqFt
1 DOM
Built: 1925
Status: Active
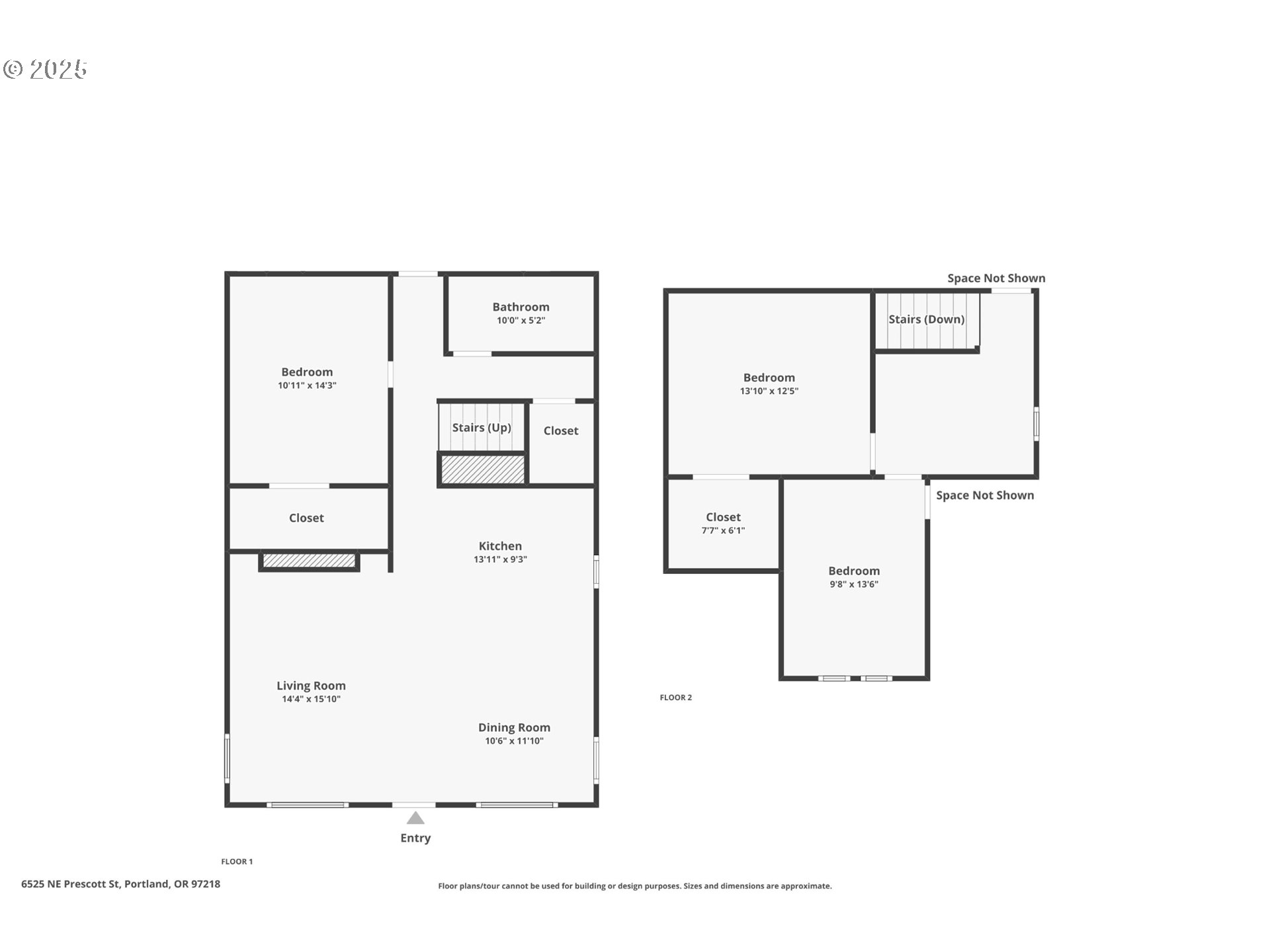
Move-in ready and fully renovated inside and out, this beautifully updated home offers modern comfort and thoughtful design throughout. The main level features an open-concept living and dining area with a sleek new electric fireplace, surrounded by custom cabinetry. It opens to a stylish kitchen, complete with white cabinetry, quartz countertops, and brand-new stainless steel appliances. A main floor bedroom and walk in shower add flexibility for guests or multi-generational living.Significant updates include a new roof, fresh siding, and upgraded vinyl windows, along with energy efficient mini-split systems for heating and cooling throughout the home. The electrical panel has been upgraded, and a new water heater installed. Plumbing and lighting fixtures have been modernized, and the interior features fresh paint, updated millwork, custom tile in the kitchen and bath, with durable luxury vinyl plank flooring throughout the entire home.The exterior includes side RV parking, a backyard parking pad, and a generously sized front/backyard with room for gardening, entertaining, or additional vehicle space.This home is conveniently located just blocks from schools, parks, and dining, and situated along a major bus line for easy access to local amenities. This is a great blend of style, function, and location. [Home Energy Score = 4. HES Report at https://rpt.greenbuildingregistry.com/hes/OR10236962]
Listing Provided Courtesy of Phuong Yen Ma, MORE Realty
447009398
SingleFamilyResidence
1 DOM
3
6969.6 SqFt
1
1506
1925
R7
Multnomah
R239431
Scott
Roseway Heights
Leodis McDaniel
Residential
SingleFamilyResidence
PARTITION PLAT 1997-2, LOT 1
Listing Provided Courtesy of Phuong Yen Ma, MORE Realty
PDXA1 Realty Group data last checked: Oct 10, 2025 13:46 | Listing last modified Oct 10, 2025 07:23,
Source:
506
1000
0
1506
Assessor
1506
1/Gas
3
1
0
1
Composition
Stories2
Driveway,RVAccessPar
2
1925
Yes
CementSiding
CrawlSpace
RVParking
CrawlSpace
ConcretePerimeter
DoublePaneWindows
BuiltinFeatures, Fireplace
Dishwasher, FreeStandingRange, FreeStandingRefrigerator, Microwave, Quartz
LuxuryVinylPlank, Quartz
Garden, RVParking, Yard
MiniSplit
Electricity
MiniSplit
PublicSewer
Electricity
Electricity
4072.95
0
Cash,Conventional,FHA,VALoan
10-09-2025
No
No
1
1
Cash,Conventional,FHA,VALoan
$529,000
$529,000
Oct 10, 2025 07:23
Listing courtesy of MORE Realty.
The content relating to real estate for sale on this site comes in part from the IDX program of the RMLS of Portland, Oregon.
Real Estate listings held by brokerage firms other than this firm are marked with the RMLS logo, and
detailed information about these properties include the name of the listing's broker.
Listing content is copyright © 2019 RMLS of Portland, Oregon.
All information provided is deemed reliable but is not guaranteed and should be independently verified.
PDXA1 Realty Group data last checked: Oct 10, 2025 13:46 | Listing last modified Oct 10, 2025 07:23.
Some properties which appear for sale on this web site may subsequently have sold or may no longer be available.
Venkat is a very good negotiator. He was quick to respond, when I had questions. He came to all the meetings with the seller and provided valuable inputs on inspections and mortgage options. Overall, I was impressed and would love to work with him again.
Venkat is very professional and has tremendous knowledge in the real estate industry. He was always available to discuss and made time to visit the construction site several times during the course. I was looking at a new construction and had to wait for the property to be built.
Muthu has good knowledge about the community and understands the needs of his customers. He helped us sell our house in record time and followed up with the buyer and the agent until the complete closure. We received multiple offers and Muthu negotiated well and helped us decide on the buyer.
Venkat Muthu is a wonderful person to go with. Very friendly and advices as per the need and gives his service and support where and when needed and some times going beyond. Really happy to share the review and I highly recommend if anyone is looking for any homes.
Venkat is great to work with as realtor. He is very patient and listens to the requests of the buyer or seller and doesn’t push as t any point of time. He has a good understanding of the market situation and location for investments as well. All this comes from experience with him recently buying a home.
Whether you’re looking to buy your dream home, sell your property for the best price, or explore investment opportunities, PDXA1 Realty Group is here to help. With expertise, personalized service, and a commitment to your goals, we’ll guide you every step of the way. Contact us today at (971) 330-1856 let’s start the conversation!
© PDXA1 Realty Group | Powered by Taigha