$950000
4 Bed
2 Bath
3297 SqFt
0 DOM
Built: 1892
Status: Active
Open House
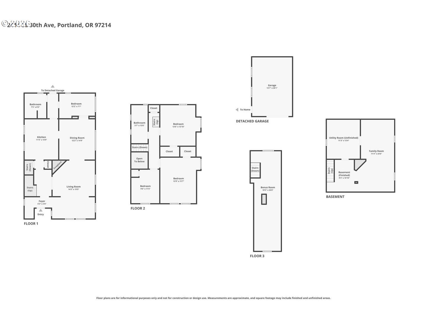
Exceptional 1892 Dutch Colonial offering a level of quality and craftsmanship rarely delivered. Over eight years and dozens of skilled tradespeople transformed this SE Portland landmark into something extraordinary: a home with the soul, character, and proportions of its era, paired with the confidence and efficiency of a new build. Lovingly rebuilt from the studs out with no expense spared, no corner cut, and no detail overlooked. New electrical, plumbing, sewer line, roof, skylights, 30 new windows, and HardiPlank siding. Asbestos abated. Oil tank decommissioned. Every major system replaced while unbelievably unique details were thoughtfully preserved throughout, creating a perfect blend of form and function. All work has been meticulously documented. The dramatic entry welcomes you to airy spaces filled with calming natural light. Stately formal living and dining rooms bring warmth, comfort, and timeless character to the home. The spacious and bright kitchen features professional-grade Bosch and Fisher & Paykel appliances, abundant counter space, and walk-in pantry. Modern smart home features allow you to control lighting, doors, and HVAC systems conveniently from your phone.Whimsical upper level offers the perfect retreat for crafting, yoga, meditation, reading, or simply escaping from the busy world. Outside, enjoy a gated and private backyard oasis with professional landscape design, gazebo, custom hardscape, specimen plantings, and remote-controlled landscape lighting. Oversized detached, insulated, garage/shop offers EV-ready power, workshop potential, and endless flexibility. Off-street parking and handsome custom iron-and-Koa-wood gate top off the outdoor setting.This unbelievably convenient location speaks for itself with all that Division and Clinton have to offer just outside your door. Walkscore calls this location a Walker and Biker Paradise.This is not a renovation. It is a true restoration. Come see for yourself. Open Sat & Sun 2-4.
Listing Provided Courtesy of Eric Hagstette, Inhabit Real Estate
190296840
SingleFamilyResidence
0 DOM
4
4791.6 SqFt
2
3297
1892
Multnomah
R326597
Abernethy
Hosford
Cleveland
Residential
SingleFamilyResidence
SECTION 01 1S 1E, TL 12000 0.11 ACRES
Listing Provided Courtesy of Eric Hagstette, Inhabit Real Estate
PDXA1 Realty Group data last checked: Apr 10, 2026 23:55 | Listing last modified Apr 10, 2026 11:22,
Source:
Sat, Apr 11th, 2PM to 4PM
Sun, Apr 12th, 2PM to 4PM
962
1196
754
3297
various
2158
1/Gas
4
2
0
2
Composition
1, Detached, Oversized
DutchColonial
Driveway,Secured
3
1892
No
ShingleSiding, WoodComposite
PartialBasement,PartiallyFinished,StorageSpace
PartialBasement,Part
ConcretePerimeter
DoublePaneWindows
FireplaceInsert, Formal, HardwoodFloors
BuiltinOven, BuiltinRange, Dishwasher, Disposal, FreeStandingRefrigerator, GasAppliances, Pantry, RangeHood
GarageDoorOpener, HardwoodFloors, HighCeilings, HighSpeedInternet, Skylight, TileFloor, WasherDryer
Deck, Fenced, Gazebo, Patio, Porch, ToolShed, Workshop, Yard
BuiltinLighting, GarageonMain, MainFloorBedroomBath, UtilityRoomOnMain
CentralAir
Recirculating, Tankless
ForcedAir90
PublicSewer
Recirculating, Tankless
Gas
8090.19
0
Cash,Conventional
04-10-2026
No
No
0
0
Cash,Conventional
$950,000
$950,000
Apr 10, 2026 11:22
Listing courtesy of Inhabit Real Estate.
The content relating to real estate for sale on this site comes in part from the IDX program of the RMLS of Portland, Oregon.
Real Estate listings held by brokerage firms other than this firm are marked with the RMLS logo, and
detailed information about these properties include the name of the listing's broker.
Listing content is copyright © 2019 RMLS of Portland, Oregon.
All information provided is deemed reliable but is not guaranteed and should be independently verified.
PDXA1 Realty Group data last checked: Apr 10, 2026 23:55 | Listing last modified Apr 10, 2026 11:22.
Some properties which appear for sale on this web site may subsequently have sold or may no longer be available.
Venkat is a very good negotiator. He was quick to respond, when I had questions. He came to all the meetings with the seller and provided valuable inputs on inspections and mortgage options. Overall, I was impressed and would love to work with him again.
Venkat is very professional and has tremendous knowledge in the real estate industry. He was always available to discuss and made time to visit the construction site several times during the course. I was looking at a new construction and had to wait for the property to be built.
Muthu has good knowledge about the community and understands the needs of his customers. He helped us sell our house in record time and followed up with the buyer and the agent until the complete closure. We received multiple offers and Muthu negotiated well and helped us decide on the buyer.
Venkat Muthu is a wonderful person to go with. Very friendly and advices as per the need and gives his service and support where and when needed and some times going beyond. Really happy to share the review and I highly recommend if anyone is looking for any homes.
Venkat is great to work with as realtor. He is very patient and listens to the requests of the buyer or seller and doesn’t push as t any point of time. He has a good understanding of the market situation and location for investments as well. All this comes from experience with him recently buying a home.
Whether you’re looking to buy your dream home, sell your property for the best price, or explore investment opportunities, PDXA1 Realty Group is here to help. With expertise, personalized service, and a commitment to your goals, we’ll guide you every step of the way. Contact us today at (971) 330-1856 let’s start the conversation!
© PDXA1 Realty Group | Powered by Taigha