$110000
2 Bed
2 Bath
960 SqFt
1 DOM
Built: 1979
Status: Active
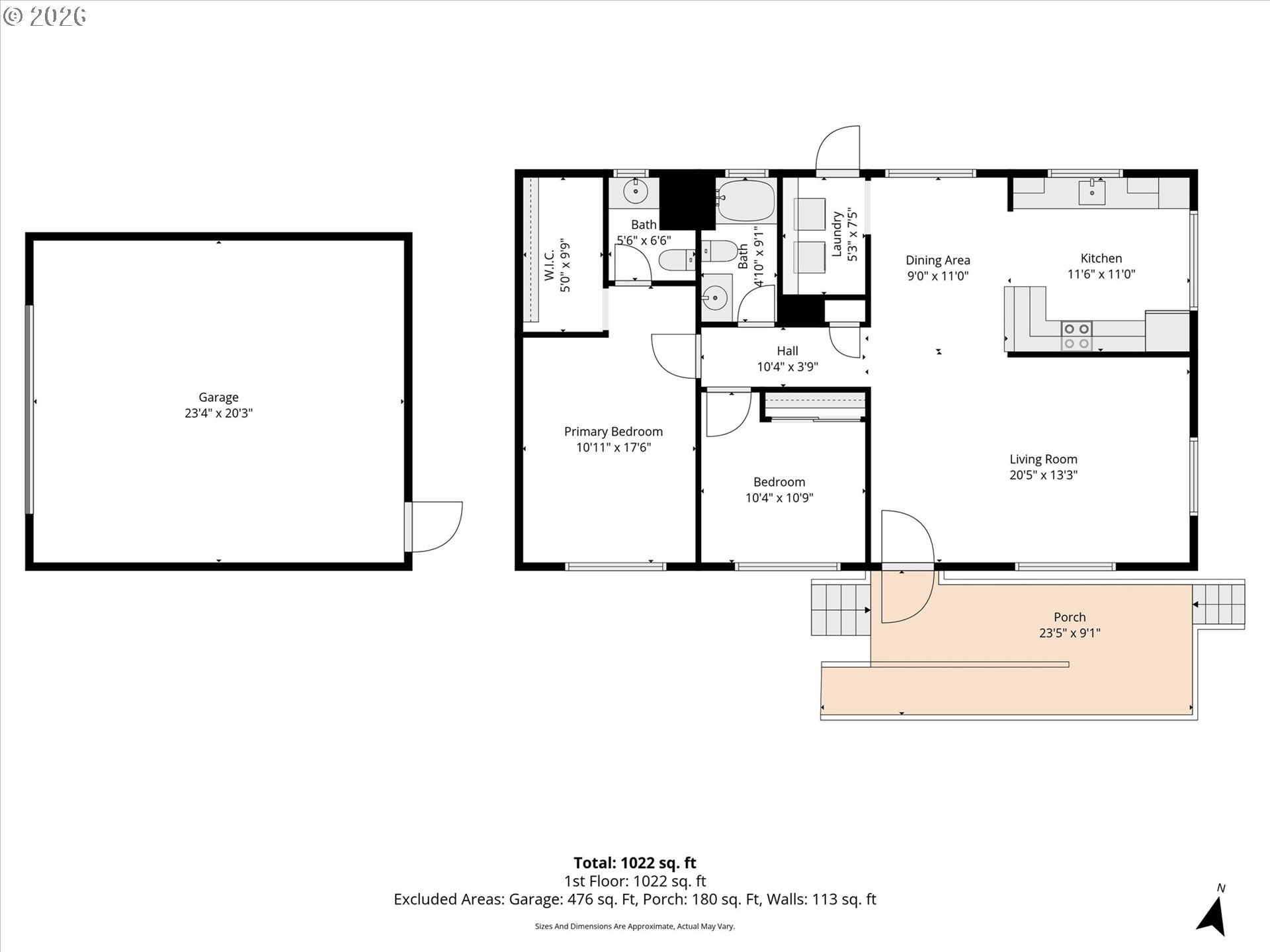
Severe fixer opportunity with significant upside. This 1979 doublewide manufactured home is situated on approximately 0.60 acres in a quiet rural setting and presents a prime opportunity for buyers looking to build equity through renovation or potential replacement. The property will require substantial clean up and repairs throughout, including the removal of personal property, debris, and overall site cleanup, all to be assumed by the buyer. The home is being sold strictly as is. Inside, the home offers 2 bedrooms and 2 bathrooms, along with a spacious living room and a kitchen with an adjoining dining area. The layout provides a functional starting point for those willing to put in the work and reimagine the space. A newer ductless heating and cooling system has already been installed, offering a valuable upgrade and added efficiency once the property is restored. The exterior provides a generous amount of usable land with a large fenced backyard, ideal for gardening, animals, or creating your own outdoor retreat. Multiple outbuildings enhance the property’s utility and flexibility, including a 21 x 25 metal shop or garage, several additional sheds and structures, and a conex shipping container for extra storage or workspace. A covered deck extends the living space outdoors but will require repair or replacement. With the right vision and effort, this property offers strong potential in a rural setting with room to grow. Bring your tools, creativity, and determination to unlock the possibilities. Ideal for cash buyers ready to take on a project and transform this property into something special.
Listing Provided Courtesy of Michael Wallin, Keller Williams Realty
412004813
SingleFamilyResidence
1 DOM
2
0.64 acres
2
960
1979
Lewis
007471003000
Castle Rock
Castle Rock
Castle Rock
Residential
SingleFamilyResidence
SECTION 32 TOWNSHIP 11N RANGE 02W LOTS 8-14 BLK 129 LITTLE FALLS
Listing Provided Courtesy of Michael Wallin, Keller Williams Realty
PDXA1 Realty Group data last checked: Apr 28, 2026 19:40 | Listing last modified Apr 27, 2026 13:34,
Source:
0
960
0
960
Records
960
2
2
0
2
Metal
1, Detached
Stories1,DoubleWideManufactured
Driveway,OffStreet
1
1979
No
MetalSiding
CrawlSpace
RVParking
CrawlSpace
Skirting
VinylFloor, WalltoWallCarpet
CoveredDeck, Fenced, Outbuilding, RVParking, ToolShed, Workshop, Yard
MiniSplit
Electricity
MiniSplit
SepticTank
Electricity
Electricity
1683.06
0
Cash,Conventional
04-27-2026
No
No
1
1
Cash,Conventional
$110,000
$110,000
Apr 27, 2026 13:34
Listing courtesy of Keller Williams Realty.
The content relating to real estate for sale on this site comes in part from the IDX program of the RMLS of Portland, Oregon.
Real Estate listings held by brokerage firms other than this firm are marked with the RMLS logo, and
detailed information about these properties include the name of the listing's broker.
Listing content is copyright © 2019 RMLS of Portland, Oregon.
All information provided is deemed reliable but is not guaranteed and should be independently verified.
PDXA1 Realty Group data last checked: Apr 28, 2026 19:40 | Listing last modified Apr 27, 2026 13:34.
Some properties which appear for sale on this web site may subsequently have sold or may no longer be available.
Venkat is a very good negotiator. He was quick to respond, when I had questions. He came to all the meetings with the seller and provided valuable inputs on inspections and mortgage options. Overall, I was impressed and would love to work with him again.
Venkat is very professional and has tremendous knowledge in the real estate industry. He was always available to discuss and made time to visit the construction site several times during the course. I was looking at a new construction and had to wait for the property to be built.
Muthu has good knowledge about the community and understands the needs of his customers. He helped us sell our house in record time and followed up with the buyer and the agent until the complete closure. We received multiple offers and Muthu negotiated well and helped us decide on the buyer.
Venkat Muthu is a wonderful person to go with. Very friendly and advices as per the need and gives his service and support where and when needed and some times going beyond. Really happy to share the review and I highly recommend if anyone is looking for any homes.
Venkat is great to work with as realtor. He is very patient and listens to the requests of the buyer or seller and doesn’t push as t any point of time. He has a good understanding of the market situation and location for investments as well. All this comes from experience with him recently buying a home.
Whether you’re looking to buy your dream home, sell your property for the best price, or explore investment opportunities, PDXA1 Realty Group is here to help. With expertise, personalized service, and a commitment to your goals, we’ll guide you every step of the way. Contact us today at (971) 330-1856 let’s start the conversation!
© PDXA1 Realty Group | Powered by Taigha