$340000
2 Bed
2 Bath
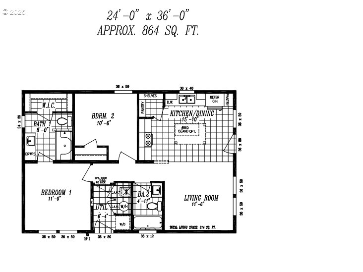
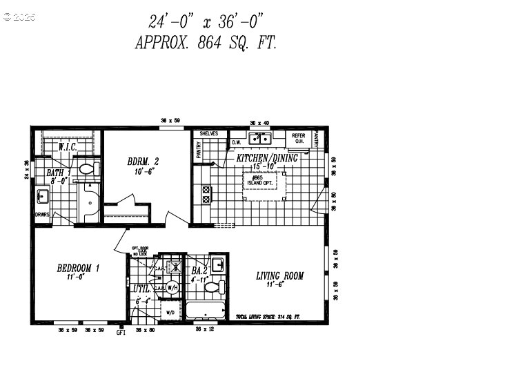
864 SqFt
47 DOM
Built: 2025
Status: Active
Don't miss your chance to own a beautiful cozy 2 Bed, 2 Bath, 864 sqft home in the vibrant Three Mile Prairie subdivision. Designed with a modern open floor plan, energy efficient systems, and an oversize single car garage, this home offers comfort and convenience. Set for completion in January 2026, it is an excellent opportunity for first-time home buyers, retirees, and investors. Enjoy neighborhood amenities such as the private dog park as well as a planned community garden area. Don't miss the chance to own in this growing neighborhood.
Listing Provided Courtesy of Katrina Rupp, West Coast Real Estate Service
574364998
ManufacturedHomeonRealProperty
47 DOM
2
4356 SqFt
2
864
2025
Lane
1917027
Siuslaw
Siuslaw
Siuslaw
Residential
ManufacturedHomeonRealProperty
18-12-15-11-06200
Listing Provided Courtesy of Katrina Rupp, West Coast Real Estate Service
PDXA1 Realty Group data last checked: Jan 07, 2026 22:49 | Listing last modified Nov 21, 2025 15:36,
Source:
0
864
0
864
Builder
864
2
2
0
2
Composition
1, Attached
Stories1,Contemporary
Driveway
1
2025
No
CementSiding
CrawlSpace
CrawlSpace
ConcretePerimeter,Sl
VinylFrames
Dishwasher, ENERGYSTARQualifiedAppliances, FreeStandingRange, FreeStandingRefrigerator, Island, Microwave
VinylFloor, WalltoWallCarpet
Fenced, Porch, Yard
AccessibleEntrance, GroundLevel, MainFloorBedroomBath, OneLevel, UtilityRoomOnMain, WalkinShower
Electricity, ENERGYSTARQualifie
ENERGYSTARQualifiedEquipment, ForcedAir
PublicSewer
Electricity, ENERGYSTARQualifiedEquipment
Electricity
455.81
1
156 / Annually
Cash,Conventional,FHA,VALoan
11-21-2025
No
No
47
47
Cash,Conventional,FHA,VALoan
$340,000
$340,000
Nov 21, 2025 15:36
Listing courtesy of West Coast Real Estate Service.
The content relating to real estate for sale on this site comes in part from the IDX program of the RMLS of Portland, Oregon.
Real Estate listings held by brokerage firms other than this firm are marked with the RMLS logo, and
detailed information about these properties include the name of the listing's broker.
Listing content is copyright © 2019 RMLS of Portland, Oregon.
All information provided is deemed reliable but is not guaranteed and should be independently verified.
PDXA1 Realty Group data last checked: Jan 07, 2026 22:49 | Listing last modified Nov 21, 2025 15:36.
Some properties which appear for sale on this web site may subsequently have sold or may no longer be available.
Venkat is a very good negotiator. He was quick to respond, when I had questions. He came to all the meetings with the seller and provided valuable inputs on inspections and mortgage options. Overall, I was impressed and would love to work with him again.
Venkat is very professional and has tremendous knowledge in the real estate industry. He was always available to discuss and made time to visit the construction site several times during the course. I was looking at a new construction and had to wait for the property to be built.
Muthu has good knowledge about the community and understands the needs of his customers. He helped us sell our house in record time and followed up with the buyer and the agent until the complete closure. We received multiple offers and Muthu negotiated well and helped us decide on the buyer.
Venkat Muthu is a wonderful person to go with. Very friendly and advices as per the need and gives his service and support where and when needed and some times going beyond. Really happy to share the review and I highly recommend if anyone is looking for any homes.
Venkat is great to work with as realtor. He is very patient and listens to the requests of the buyer or seller and doesn’t push as t any point of time. He has a good understanding of the market situation and location for investments as well. All this comes from experience with him recently buying a home.
Whether you’re looking to buy your dream home, sell your property for the best price, or explore investment opportunities, PDXA1 Realty Group is here to help. With expertise, personalized service, and a commitment to your goals, we’ll guide you every step of the way. Contact us today at (971) 330-1856 let’s start the conversation!
© PDXA1 Realty Group | Powered by Taigha