$839000
Price cut: $16K (01-05-2026)
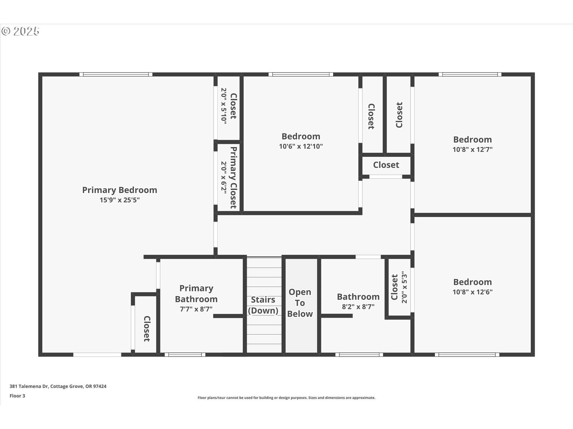
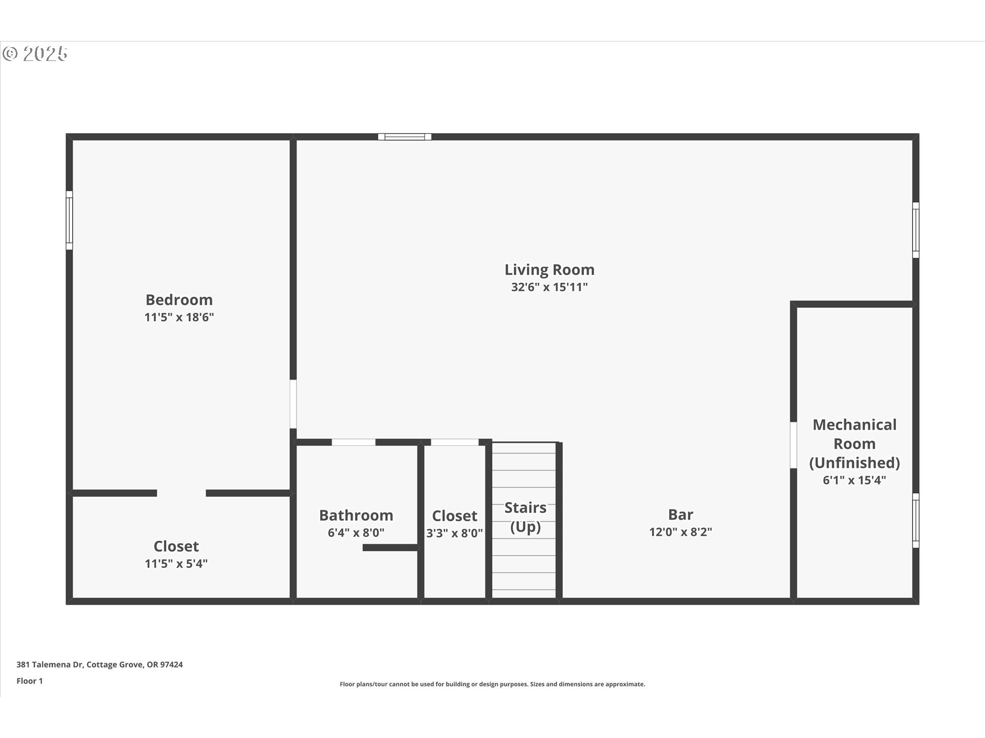
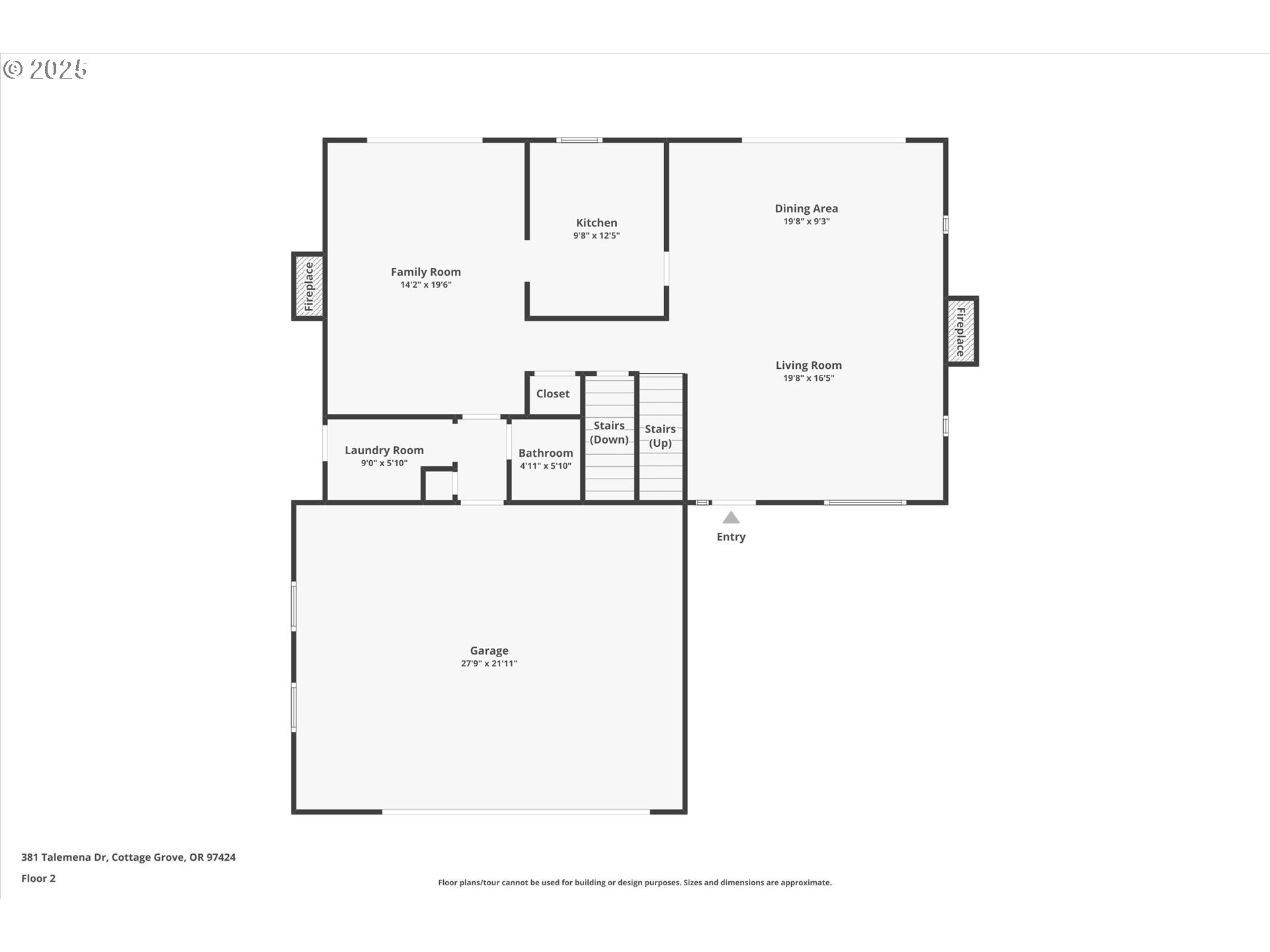
5 Bed
3.5 Bath
3510 SqFt
182 DOM
Built: 1972
Status: Active
Come home to your own private retreat just 30 minutes from Eugene on over an acre of lush, wooded land. Better than new, this beautifully remodeled home offers the perfect balance of modern comfort and natural beauty. The main level features a bright, open living room with a cozy fireplace, a dining area, and accordion doors that extend your living space to the outdoors. The kitchen is a chef’s delight with granite counters, eat-bar seating, and an easy flow into the family room—complete with a red Vermont Castings wood stove. Step outside to an entertainer’s dream patio with a brick fire pit and tranquil waterfall feature, surrounded by towering fir trees and sweeping views. Thoughtful upgrades include a new membrane roof, all-new bathrooms, windows, Luxury Vinyl Plank flooring, carpet, interior and exterior paint, newer garage doors with openers, an EV charger, and abundant storage. With a double-car garage and endless charm, this home is move-in ready and truly a must-see!
Listing Provided Courtesy of Paula Thompson, RE/MAX Integrity
233074651
SingleFamilyResidence
182 DOM
5
1.02 acres
3.5
3510
1972
RR2
Lane
1030384
Bohemia
Lincoln
Cottage Grove
Residential
SingleFamilyResidence
20-03-32-30-01301
Listing Provided Courtesy of Paula Thompson, RE/MAX Integrity
PDXA1 Realty Group data last checked: Apr 01, 2026 19:17 | Listing last modified Mar 26, 2026 14:35,
Source:
1170
1170
1170
3510
RLID
2340
1/Gas
5
3
1
3.5
Flat,Membrane
2, Attached
Contemporary
Driveway,RVAccessPar
3
1972
No
Brick, WoodSiding
Finished
RVBoatStorage
Finished
ConcretePerimeter
VinylFrames
Fireplace, SlidingDoors
Dishwasher, FreeStandingRange, FreeStandingRefrigerator, Granite, Microwave, StainlessSteelAppliance
CeilingFan, GarageDoorOpener, LaminateFlooring, LuxuryVinylPlank, Quartz, WalltoWallCarpet, WoodFloors
Porch, RVBoatStorage, WaterFeature, Yard
GarageonMain, GroundLevel, WalkinShower
None
Gas
ForcedAir
SepticTank
Gas
Gas
4555.35
0
Cash,Conventional,FHA,VALoan
09-25-2025
No
No
182
188
Cash,Conventional,FHA,VALoan
$855,000
$839,000
Mar 26, 2026 14:35
Listing courtesy of RE/MAX Integrity.
The content relating to real estate for sale on this site comes in part from the IDX program of the RMLS of Portland, Oregon.
Real Estate listings held by brokerage firms other than this firm are marked with the RMLS logo, and
detailed information about these properties include the name of the listing's broker.
Listing content is copyright © 2019 RMLS of Portland, Oregon.
All information provided is deemed reliable but is not guaranteed and should be independently verified.
PDXA1 Realty Group data last checked: Apr 01, 2026 19:17 | Listing last modified Mar 26, 2026 14:35.
Some properties which appear for sale on this web site may subsequently have sold or may no longer be available.
Venkat is a very good negotiator. He was quick to respond, when I had questions. He came to all the meetings with the seller and provided valuable inputs on inspections and mortgage options. Overall, I was impressed and would love to work with him again.
Venkat is very professional and has tremendous knowledge in the real estate industry. He was always available to discuss and made time to visit the construction site several times during the course. I was looking at a new construction and had to wait for the property to be built.
Muthu has good knowledge about the community and understands the needs of his customers. He helped us sell our house in record time and followed up with the buyer and the agent until the complete closure. We received multiple offers and Muthu negotiated well and helped us decide on the buyer.
Venkat Muthu is a wonderful person to go with. Very friendly and advices as per the need and gives his service and support where and when needed and some times going beyond. Really happy to share the review and I highly recommend if anyone is looking for any homes.
Venkat is great to work with as realtor. He is very patient and listens to the requests of the buyer or seller and doesn’t push as t any point of time. He has a good understanding of the market situation and location for investments as well. All this comes from experience with him recently buying a home.
Whether you’re looking to buy your dream home, sell your property for the best price, or explore investment opportunities, PDXA1 Realty Group is here to help. With expertise, personalized service, and a commitment to your goals, we’ll guide you every step of the way. Contact us today at (971) 330-1856 let’s start the conversation!
© PDXA1 Realty Group | Powered by Taigha