$480000
Price cut: $15K (04-02-2026)
5 Bed
2 Bath
1800 SqFt
19 DOM
Built: 1970
Status: Pending
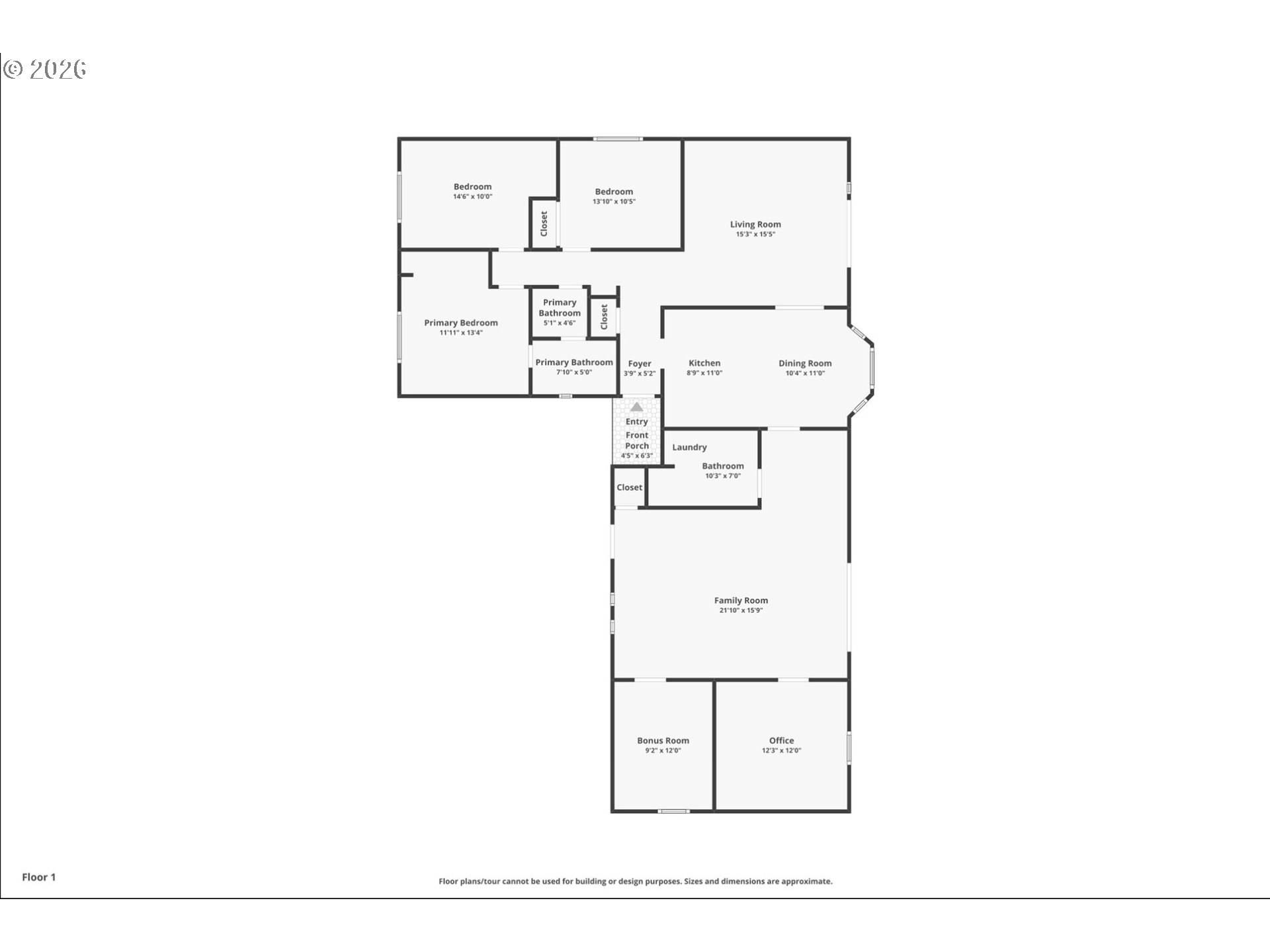
Welcome to 1885 Churchill St—an inviting and thoughtfully updated home in Southwest Eugene. With approximately 1,800 square feet, this spacious layout offers five bedrooms, two bathrooms, and multiple living areas including a living room, dining space, kitchen, and a versatile great room.The flexible floor plan and separation of space creates a fantastic dual living opportunity, ideal for multi-generational living, guests, or potential rental use.Fresh interior paint and updated lighting bring a bright, modern feel throughout. Outside, enjoy a fully fenced yard (front and back) with low-maintenance turf and a large parking area. Conveniently located near schools, parks, and neighborhood amenities, this home offers space, flexibility, function and opportunity.
Listing Provided Courtesy of Shae Donnelly, Frankly Real Estate
145395319
SingleFamilyResidence
19 DOM
5
7405.2 SqFt
2
1800
1970
Lane
0720811
Twin Oaks
Kennedy
Churchill
Residential
SingleFamilyResidence
To be provided by escrow
Listing Provided Courtesy of Shae Donnelly, Frankly Real Estate
PDXA1 Realty Group data last checked: Apr 12, 2026 10:13 | Listing last modified Apr 12, 2026 06:20,
Source:
0
1800
0
1800
Seller
1800
5
2
0
2
Shingle
Stories1
Driveway
1
1970
No
T111Siding
CrawlSpace
CrawlSpace
ConcretePerimeter
SlidingDoors
Dishwasher, FreeStandingRange, FreeStandingRefrigerator
LaminateFlooring, Laundry, LuxuryVinylPlank, SeparateLivingQuartersApartmentAuxLivingUnit
Deck, Fenced, Porch, ToolShed, Yard
OneLevel
MiniSplit
Electricity
Ceiling, Ductless, WallHeater
PublicSewer
Electricity
Electricity
4421.87
0
Cash,Conventional,FHA,VALoan
03-22-2026
No
No
04-10-2026
19
19
Cash,Conventional,FHA,VALoan
$495,000
$480,000
Apr 12, 2026 06:20
Listing courtesy of Frankly Real Estate.
The content relating to real estate for sale on this site comes in part from the IDX program of the RMLS of Portland, Oregon.
Real Estate listings held by brokerage firms other than this firm are marked with the RMLS logo, and
detailed information about these properties include the name of the listing's broker.
Listing content is copyright © 2019 RMLS of Portland, Oregon.
All information provided is deemed reliable but is not guaranteed and should be independently verified.
PDXA1 Realty Group data last checked: Apr 12, 2026 10:13 | Listing last modified Apr 12, 2026 06:20.
Some properties which appear for sale on this web site may subsequently have sold or may no longer be available.
Venkat is a very good negotiator. He was quick to respond, when I had questions. He came to all the meetings with the seller and provided valuable inputs on inspections and mortgage options. Overall, I was impressed and would love to work with him again.
Venkat is very professional and has tremendous knowledge in the real estate industry. He was always available to discuss and made time to visit the construction site several times during the course. I was looking at a new construction and had to wait for the property to be built.
Muthu has good knowledge about the community and understands the needs of his customers. He helped us sell our house in record time and followed up with the buyer and the agent until the complete closure. We received multiple offers and Muthu negotiated well and helped us decide on the buyer.
Venkat Muthu is a wonderful person to go with. Very friendly and advices as per the need and gives his service and support where and when needed and some times going beyond. Really happy to share the review and I highly recommend if anyone is looking for any homes.
Venkat is great to work with as realtor. He is very patient and listens to the requests of the buyer or seller and doesn’t push as t any point of time. He has a good understanding of the market situation and location for investments as well. All this comes from experience with him recently buying a home.
Whether you’re looking to buy your dream home, sell your property for the best price, or explore investment opportunities, PDXA1 Realty Group is here to help. With expertise, personalized service, and a commitment to your goals, we’ll guide you every step of the way. Contact us today at (971) 330-1856 let’s start the conversation!
© PDXA1 Realty Group | Powered by Taigha