$450000
2 Bed
2 Bath
1344 SqFt
1 DOM
Built: 2019
Status: Active
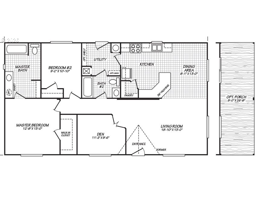
Discover the perfect blend of space, comfort, and Central Oregon charm with this beautifully situated 2-bedroom, 2-bath home plus a versatile den, set on over 2.5 acres in desirable Crooked River Ranch. Includes a permitted cement floor oversized garage for flexible uses.Inside, you’ll find a thoughtfully designed layout featuring durable and stylish luxury vinyl plank flooring that flows throughout the home, offering both a modern look and easy maintenance. The open living space is filled with natural light, while the flexible den provides the perfect option for a home office, guest room, or hobby space. The kitchen features tile countertops, ample cabinetry, and a convenient pantry for extra storage, making it both functional and inviting. The primary suite offers privacy and comfort, while the second bedroom and full bath provide plenty of space for family or visitors.Step outside and take in the expansive acreage—perfect for enjoying wide-open skies, gardening, outdoor recreation, or simply soaking in the peaceful rural setting. A standout feature of the property is the 24' x 24' oversized garage, offering plenty of space for parking, storage, or housing your tools and recreational gear. There’s also ample room for RV parking, additional toys, or even future improvements.Located in a serene community known for its stunning canyon views, golf course, and access to outdoor adventure, this property offers the ideal balance of tranquility and convenience. Whether you’re looking for a full-time residence or a Central Oregon retreat, this one checks all the boxes.
Listing Provided Courtesy of Chelsea Dietmeyer, Tall Firs Realty
704146343
ManufacturedHomeonRealProperty
1 DOM
2
2.68 acres
2
1344
2019
CRRR
Jefferson
5854
Culver
Culver
Culver
Residential
ManufacturedHomeonRealProperty
LOT:200 BLK:200 SEC:C SUBD:CRR PHASE 3 SEC/TWN/RNG/MER:SEC 10 TWN 13S RNG 12E
Listing Provided Courtesy of Chelsea Dietmeyer, Tall Firs Realty
PDXA1 Realty Group data last checked: Apr 26, 2026 04:28 | Listing last modified Apr 25, 2026 16:53,
Source:
0
1344
0
1344
County
1344
2
2
0
2
Composition
2, Detached, ExtraDeep, Oversized
Stories1,DoubleWideManufactured
Driveway,RVAccessPar
1
2019
No
T111Siding
None
RVParking,RVBoatStorage
None
PillarPostPier,Slab
Pool, TennisCourt
Dishwasher, Pantry, SolidSurfaceCountertop
CeilingFan, VinylFloor
CoveredDeck, Deck, Outbuilding, RVHookup, SatelliteDish, Workshop
AccessibleApproachwithRamp, GroundLevel, MainFloorBedroomBath, NaturalLighting
MiniSplit
Electricity
ForcedAir, MiniSplit
SepticTank
Electricity
Electricity
1826.42
1
580 / Annually
Cash,Conventional,FHA,VALoan
04-24-2026
No
No
1
2
Cash,Conventional,FHA,VALoan
$450,000
$450,000
Apr 25, 2026 16:53
Listing courtesy of Tall Firs Realty.
The content relating to real estate for sale on this site comes in part from the IDX program of the RMLS of Portland, Oregon.
Real Estate listings held by brokerage firms other than this firm are marked with the RMLS logo, and
detailed information about these properties include the name of the listing's broker.
Listing content is copyright © 2019 RMLS of Portland, Oregon.
All information provided is deemed reliable but is not guaranteed and should be independently verified.
PDXA1 Realty Group data last checked: Apr 26, 2026 04:28 | Listing last modified Apr 25, 2026 16:53.
Some properties which appear for sale on this web site may subsequently have sold or may no longer be available.
Venkat is a very good negotiator. He was quick to respond, when I had questions. He came to all the meetings with the seller and provided valuable inputs on inspections and mortgage options. Overall, I was impressed and would love to work with him again.
Venkat is very professional and has tremendous knowledge in the real estate industry. He was always available to discuss and made time to visit the construction site several times during the course. I was looking at a new construction and had to wait for the property to be built.
Muthu has good knowledge about the community and understands the needs of his customers. He helped us sell our house in record time and followed up with the buyer and the agent until the complete closure. We received multiple offers and Muthu negotiated well and helped us decide on the buyer.
Venkat Muthu is a wonderful person to go with. Very friendly and advices as per the need and gives his service and support where and when needed and some times going beyond. Really happy to share the review and I highly recommend if anyone is looking for any homes.
Venkat is great to work with as realtor. He is very patient and listens to the requests of the buyer or seller and doesn’t push as t any point of time. He has a good understanding of the market situation and location for investments as well. All this comes from experience with him recently buying a home.
Whether you’re looking to buy your dream home, sell your property for the best price, or explore investment opportunities, PDXA1 Realty Group is here to help. With expertise, personalized service, and a commitment to your goals, we’ll guide you every step of the way. Contact us today at (971) 330-1856 let’s start the conversation!
© PDXA1 Realty Group | Powered by Taigha