$1399000
4 Bed
3.5 Bath
2646 SqFt
221 DOM
Built: 2025
Status: Active
Open House
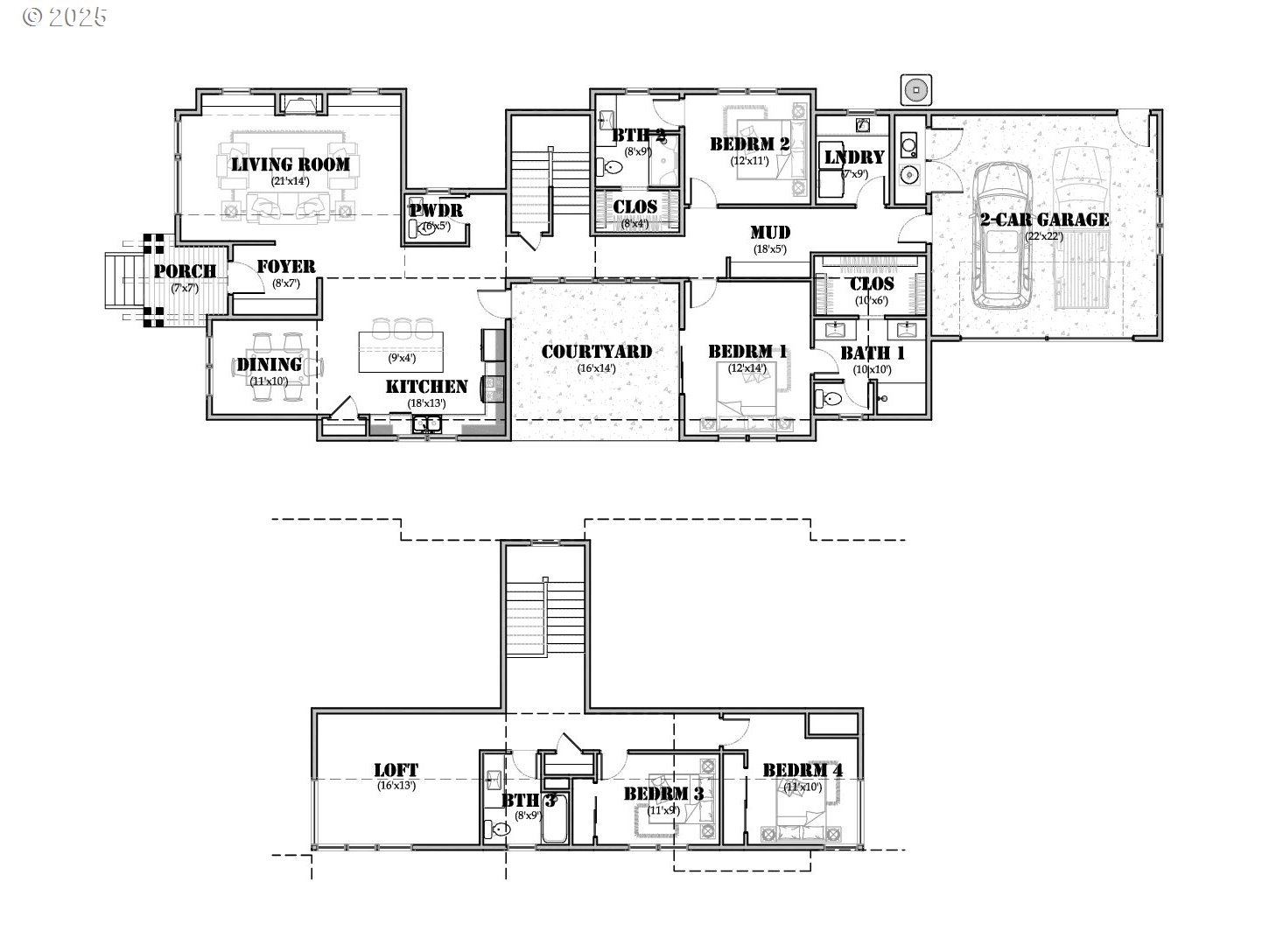
Welcome to Rock Creek Lot 6 located in the newest neighborhood in Hood River, where thoughtful design meets everyday comfort. This 4-bedroom, 3.5-bathroom home offers versatile living with two primary-style suites on the main level, each featuring walk-in closets and connected bathrooms. Upstairs, you’ll find two additional bedrooms and a spacious loft—perfect for a home office, playroom, or second living space. The heart of the home surrounds a private courtyard, ideal for indoor-outdoor living and entertaining. An open-concept living room, dining area, and kitchen make hosting and daily life seamless, while a mudroom and 2-car garage add convenience. Enjoy a welcoming front porch entrance and an ideal location just minutes from all that Hood River has to offer—outdoor adventure, local shops, and great dining—with the added bonus of beautiful surrounding views.
Listing Provided Courtesy of Jim Tennant, Curtis Homes Realty
725671353
SingleFamilyResidence
221 DOM
4
7405.2 SqFt
3.5
2646
2025
HoodRiver
1069
Westside
Hood River
Hood River Vall
Residential
SingleFamilyResidence
Part of parcel #03N10E4A2400
Listing Provided Courtesy of Jim Tennant, Curtis Homes Realty
PDXA1 Realty Group data last checked: Apr 19, 2026 18:28 | Listing last modified Apr 17, 2026 16:56,
Source:
Fri, Apr 24th, 2PM to 7PM
Sat, Apr 25th, 11AM to 5PM
750
1896
0
2646
Builder
2646
1/Gas
4
3
1
3.5
Composition
2, Attached
Stories2,NWContemporary
Driveway
2
2025
Yes
DoublePaneWindows,ENERGYSTARQualifiedAppliances,EnergyStarAirConditioning,Tankless
CementSiding
None
None
StemWall
DoublePaneWindows,Vi
BuiltinOven, Dishwasher, Disposal, ENERGYSTARQualifiedAppliances, GasAppliances, Island, Microwave, Pantry,
GarageDoorOpener, HighSpeedInternet, Laundry, LuxuryVinylPlank, Quartz, Sprinkler, TileFloor, VaultedCeilin
CoveredPatio, Fenced, Porch, Sprinkler, Yard
MainFloorBedroomBath, UtilityRoomOnMain
CentralAir
Tankless
ENERGYSTARQualifiedEquipment, ForcedAir
PublicSewer
Tankless
Electricity, Gas
1649.2
1
0
Cash,Conventional
09-08-2025
No
No
221
223
Cash,Conventional
$1,399,000
$1,399,000
Apr 17, 2026 16:56
Listing courtesy of Curtis Homes Realty.
The content relating to real estate for sale on this site comes in part from the IDX program of the RMLS of Portland, Oregon.
Real Estate listings held by brokerage firms other than this firm are marked with the RMLS logo, and
detailed information about these properties include the name of the listing's broker.
Listing content is copyright © 2019 RMLS of Portland, Oregon.
All information provided is deemed reliable but is not guaranteed and should be independently verified.
PDXA1 Realty Group data last checked: Apr 19, 2026 18:28 | Listing last modified Apr 17, 2026 16:56.
Some properties which appear for sale on this web site may subsequently have sold or may no longer be available.
Venkat is a very good negotiator. He was quick to respond, when I had questions. He came to all the meetings with the seller and provided valuable inputs on inspections and mortgage options. Overall, I was impressed and would love to work with him again.
Venkat is very professional and has tremendous knowledge in the real estate industry. He was always available to discuss and made time to visit the construction site several times during the course. I was looking at a new construction and had to wait for the property to be built.
Muthu has good knowledge about the community and understands the needs of his customers. He helped us sell our house in record time and followed up with the buyer and the agent until the complete closure. We received multiple offers and Muthu negotiated well and helped us decide on the buyer.
Venkat Muthu is a wonderful person to go with. Very friendly and advices as per the need and gives his service and support where and when needed and some times going beyond. Really happy to share the review and I highly recommend if anyone is looking for any homes.
Venkat is great to work with as realtor. He is very patient and listens to the requests of the buyer or seller and doesn’t push as t any point of time. He has a good understanding of the market situation and location for investments as well. All this comes from experience with him recently buying a home.
Whether you’re looking to buy your dream home, sell your property for the best price, or explore investment opportunities, PDXA1 Realty Group is here to help. With expertise, personalized service, and a commitment to your goals, we’ll guide you every step of the way. Contact us today at (971) 330-1856 let’s start the conversation!
© PDXA1 Realty Group | Powered by Taigha