$225000
Bed
Bath
2808 SqFt
4 DOM
Built: 1987
Status: Active
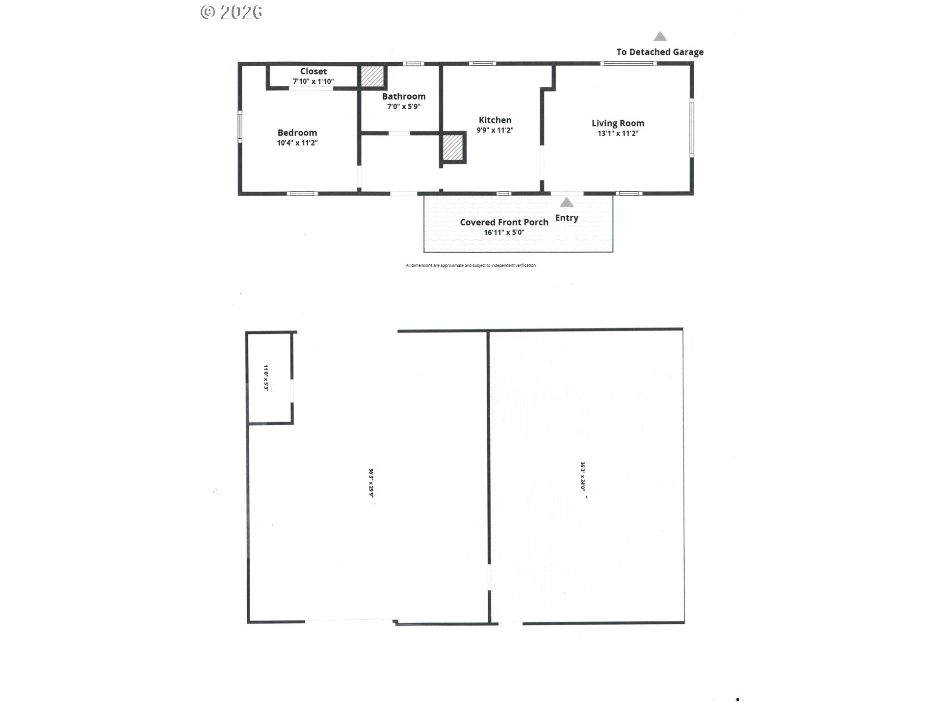
This commercial property features a 36' x 30' shop with a concrete floor and convenient pull-through roll-up doors. It includes a 36' x 28' partially enclosed lean to and a 20' x 36' roof cover over a single-wide trailer. The 1971 single-wide measures 12' x 40' and contains one bedroom, one bathroom, and a kitchen area equipped with cabinets and a countertop, although it lacks appliances. The living room was previously utilized as an office for a former business. Additionally, the property includes a 24' x 30' storage building.The premises are equipped with three-phase power, two electric meters, fiber internet, and a loading dock, all accompanied by ample parking. City water and sewer services are also available. The total lot size is 0.56 acres.
Listing Provided Courtesy of Michal Madden, Madden Realty
256765236
Commercial
4 DOM
0.56 acres
2808
1987
Comm
Grant
13S3122C10201
CommercialSale
Commercial
13-31-22C TL102
Listing Provided Courtesy of Michal Madden, Madden Realty
PDXA1 Realty Group data last checked: Apr 20, 2026 06:22 | Listing last modified Apr 20, 2026 00:11,
Source:
2808
Metal
OnSite
1987
No
None
ForcedAir
PublicSewer
Electricity
950.83
Cash,Conventional
04-16-2026
No
No
4
4
Cash,Conventional
$225,000
$225,000
Apr 20, 2026 00:11
Listing courtesy of Madden Realty.
The content relating to real estate for sale on this site comes in part from the IDX program of the RMLS of Portland, Oregon.
Real Estate listings held by brokerage firms other than this firm are marked with the RMLS logo, and
detailed information about these properties include the name of the listing's broker.
Listing content is copyright © 2019 RMLS of Portland, Oregon.
All information provided is deemed reliable but is not guaranteed and should be independently verified.
PDXA1 Realty Group data last checked: Apr 20, 2026 06:22 | Listing last modified Apr 20, 2026 00:11.
Some properties which appear for sale on this web site may subsequently have sold or may no longer be available.
Venkat is a very good negotiator. He was quick to respond, when I had questions. He came to all the meetings with the seller and provided valuable inputs on inspections and mortgage options. Overall, I was impressed and would love to work with him again.
Venkat is very professional and has tremendous knowledge in the real estate industry. He was always available to discuss and made time to visit the construction site several times during the course. I was looking at a new construction and had to wait for the property to be built.
Muthu has good knowledge about the community and understands the needs of his customers. He helped us sell our house in record time and followed up with the buyer and the agent until the complete closure. We received multiple offers and Muthu negotiated well and helped us decide on the buyer.
Venkat Muthu is a wonderful person to go with. Very friendly and advices as per the need and gives his service and support where and when needed and some times going beyond. Really happy to share the review and I highly recommend if anyone is looking for any homes.
Venkat is great to work with as realtor. He is very patient and listens to the requests of the buyer or seller and doesn’t push as t any point of time. He has a good understanding of the market situation and location for investments as well. All this comes from experience with him recently buying a home.
Whether you’re looking to buy your dream home, sell your property for the best price, or explore investment opportunities, PDXA1 Realty Group is here to help. With expertise, personalized service, and a commitment to your goals, we’ll guide you every step of the way. Contact us today at (971) 330-1856 let’s start the conversation!
© PDXA1 Realty Group | Powered by Taigha