$560000
3 Bed
2 Bath
1720 SqFt
21 DOM
Built: 1967
Status: Active
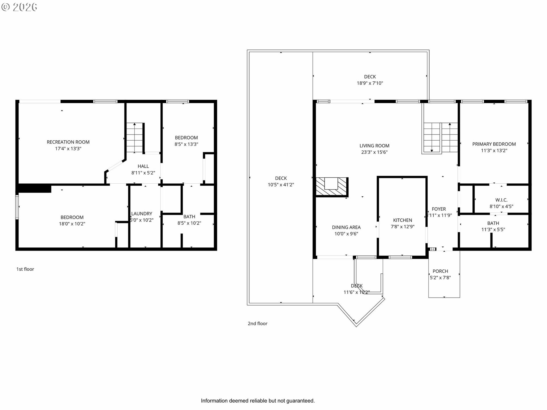
Perched to capture breathtaking panoramic views of Portland city lights, surrounding mountains, and the charming City of St. Helens, this home offers a rare blend of scenery and comfort.The primary suite on the main level features a walk-in closet, skylights that fill the space with natural light, and a beautifully remodeled bathroom with a tile shower. Thoughtful updates continue throughout with new luxury vinyl plank flooring in the bathrooms, kitchen, lower bedrooms, and family room—bringing both style and durability.Enjoy indoor-outdoor living with a spacious deck and hot tub, perfect for soaking in those incredible views year-round. A greenhouse adds even more versatility for gardening enthusiasts or those looking to create their own private oasis.The seller will have a licensed and bonded roofer install a brand-new roof prior to closing, with buyers having the opportunity to choose the roof color—a rare chance to personalize your new home before move-in.
Listing Provided Courtesy of Tammy Scamfer, MORE Realty
118648272
SingleFamilyResidence
21 DOM
3
0.55 acres
2
1720
1967
Columbia
14886
McBride
St Helens
St Helens
Residential
SingleFamilyResidence
In LIsting Office
Listing Provided Courtesy of Tammy Scamfer, MORE Realty
PDXA1 Realty Group data last checked: May 06, 2026 05:44 | Listing last modified Apr 15, 2026 13:51,
Source:
0
928
792
1720
County
928
1/Gas
3
2
0
2
Composition
2, Attached
DaylightRanch
Driveway
2
1967
No
WoodSiding
Finished
RVParking
Finished
ConcretePerimeter,Sl
Deck, Fireplace
CentralAir
Gas
ForcedAir
SandFiltered, SepticTank
Gas
Gas
4026
0
Cash,Conventional,FHA,VALoan
04-15-2026
No
No
21
21
Cash,Conventional,FHA,VALoan
$560,000
$560,000
Apr 15, 2026 13:51
Listing courtesy of MORE Realty.
The content relating to real estate for sale on this site comes in part from the IDX program of the RMLS of Portland, Oregon.
Real Estate listings held by brokerage firms other than this firm are marked with the RMLS logo, and
detailed information about these properties include the name of the listing's broker.
Listing content is copyright © 2019 RMLS of Portland, Oregon.
All information provided is deemed reliable but is not guaranteed and should be independently verified.
PDXA1 Realty Group data last checked: May 06, 2026 05:44 | Listing last modified Apr 15, 2026 13:51.
Some properties which appear for sale on this web site may subsequently have sold or may no longer be available.
Venkat is a very good negotiator. He was quick to respond, when I had questions. He came to all the meetings with the seller and provided valuable inputs on inspections and mortgage options. Overall, I was impressed and would love to work with him again.
Venkat is very professional and has tremendous knowledge in the real estate industry. He was always available to discuss and made time to visit the construction site several times during the course. I was looking at a new construction and had to wait for the property to be built.
Muthu has good knowledge about the community and understands the needs of his customers. He helped us sell our house in record time and followed up with the buyer and the agent until the complete closure. We received multiple offers and Muthu negotiated well and helped us decide on the buyer.
Venkat Muthu is a wonderful person to go with. Very friendly and advices as per the need and gives his service and support where and when needed and some times going beyond. Really happy to share the review and I highly recommend if anyone is looking for any homes.
Venkat is great to work with as realtor. He is very patient and listens to the requests of the buyer or seller and doesn’t push as t any point of time. He has a good understanding of the market situation and location for investments as well. All this comes from experience with him recently buying a home.
Whether you’re looking to buy your dream home, sell your property for the best price, or explore investment opportunities, PDXA1 Realty Group is here to help. With expertise, personalized service, and a commitment to your goals, we’ll guide you every step of the way. Contact us today at (971) 330-1856 let’s start the conversation!
© PDXA1 Realty Group | Powered by Taigha