$625000
Price cut: $24.9K (03-20-2026)
6 Bed
3 Bath
3528 SqFt
126 DOM
Built: 1966
Status: Active
Open House
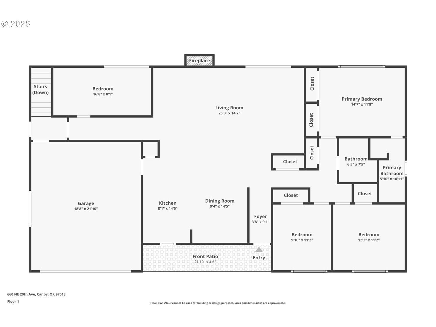
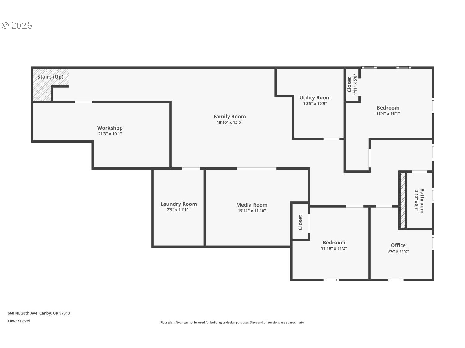
Fantastic northside Canby ranch that’s bigger than it looks on a large lot. The main level offers a large open living space with an easy, comfortable layout, new LVP flooring, fresh paint, recessed lighting, and 4 bedrooms plus 2 full baths. The newly finished full basement adds incredible flexibility with its own exterior entrance, perfect for multi-generational living, separate quarters, or future rental options? Downstairs includes 2 additional bedrooms, a full bath, office space, a workshop, a utility/storage room, laundry, and a media room prepped for surround sound with added sound-proofing. Updates include all new toilets, a tankless water heater, and a new electrical panel. So many possibilities!
Listing Provided Courtesy of Stefanie Tewalt, Equity Oregon Real Estate
685123668
SingleFamilyResidence
126 DOM
6
0.25 acres
3
3528
1966
Clackamas
00777225
Eccles
Baker Prairie
Canby
Residential
SingleFamilyResidence
1062 LIBEE COUNTRY CLUB EST LT 7
Listing Provided Courtesy of Stefanie Tewalt, Equity Oregon Real Estate
PDXA1 Realty Group data last checked: Mar 29, 2026 06:58 | Listing last modified Mar 27, 2026 10:27,
Source:
Sun, Mar 29th, 12PM to 2PM
0
1764
1764
3528
Tax
1764
1/Gas
6
3
0
3
Composition
2, Attached
Ranch
Driveway,OnStreet
2
1966
No
VinylSiding
Finished,FullBasement,StorageSpace
RVParking
Finished,FullBasemen
ConcretePerimeter
BuiltinOven, BuiltinRange, CookIsland, Disposal, DoubleOven, FreeStandingRefrigerator, Pantry, RangeHood, St
Laundry, LuxuryVinylPlank, SoundSystem
Deck, Fenced, FirePit, OutdoorFireplace, Patio, SecurityLights, ToolShed, Yard
CentralAir
Electricity, Tankless
ForcedAir
PublicSewer
Electricity, Tankless
Electricity
5721.15
0
Cash,Conventional,FHA,OwnerWillCarry,VALoan
11-21-2025
No
No
126
128
Cash,Conventional,FHA,OwnerWillCarry,VALoan
$699,900
$625,000
Mar 27, 2026 10:27
Listing courtesy of Equity Oregon Real Estate.
The content relating to real estate for sale on this site comes in part from the IDX program of the RMLS of Portland, Oregon.
Real Estate listings held by brokerage firms other than this firm are marked with the RMLS logo, and
detailed information about these properties include the name of the listing's broker.
Listing content is copyright © 2019 RMLS of Portland, Oregon.
All information provided is deemed reliable but is not guaranteed and should be independently verified.
PDXA1 Realty Group data last checked: Mar 29, 2026 06:58 | Listing last modified Mar 27, 2026 10:27.
Some properties which appear for sale on this web site may subsequently have sold or may no longer be available.
Venkat is a very good negotiator. He was quick to respond, when I had questions. He came to all the meetings with the seller and provided valuable inputs on inspections and mortgage options. Overall, I was impressed and would love to work with him again.
Venkat is very professional and has tremendous knowledge in the real estate industry. He was always available to discuss and made time to visit the construction site several times during the course. I was looking at a new construction and had to wait for the property to be built.
Muthu has good knowledge about the community and understands the needs of his customers. He helped us sell our house in record time and followed up with the buyer and the agent until the complete closure. We received multiple offers and Muthu negotiated well and helped us decide on the buyer.
Venkat Muthu is a wonderful person to go with. Very friendly and advices as per the need and gives his service and support where and when needed and some times going beyond. Really happy to share the review and I highly recommend if anyone is looking for any homes.
Venkat is great to work with as realtor. He is very patient and listens to the requests of the buyer or seller and doesn’t push as t any point of time. He has a good understanding of the market situation and location for investments as well. All this comes from experience with him recently buying a home.
Whether you’re looking to buy your dream home, sell your property for the best price, or explore investment opportunities, PDXA1 Realty Group is here to help. With expertise, personalized service, and a commitment to your goals, we’ll guide you every step of the way. Contact us today at (971) 330-1856 let’s start the conversation!
© PDXA1 Realty Group | Powered by Taigha