$700000
5 Bed
3.5 Bath
2206 SqFt
43 DOM
Built: 1987
Status: Active
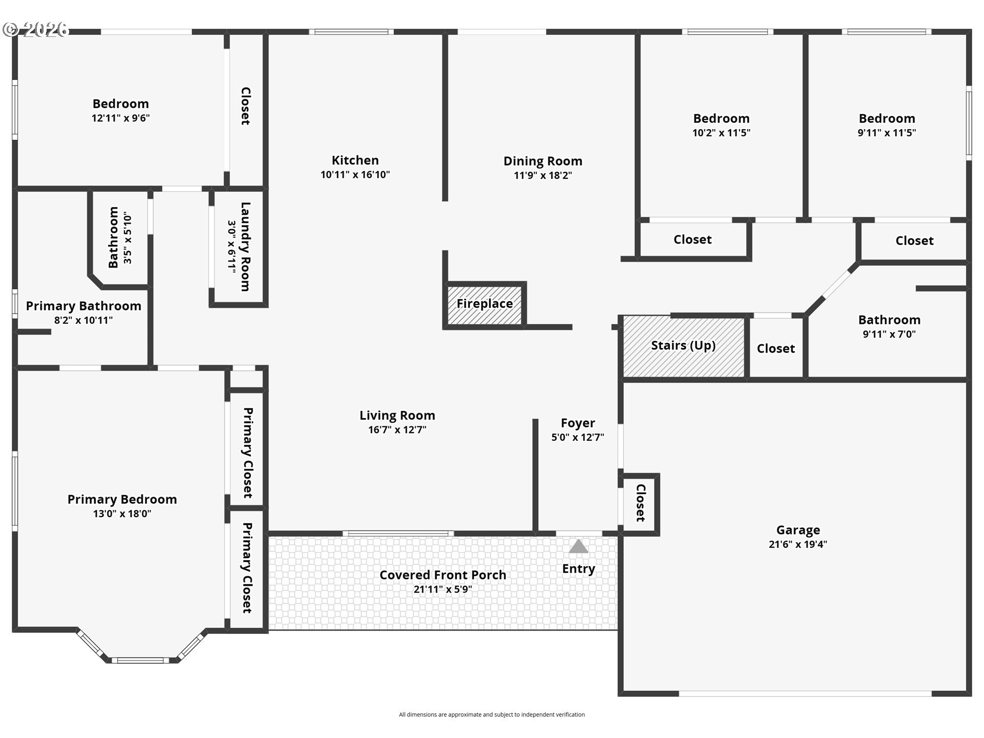
Single-level living in Charbonneau on a quiet, no-through-traffic street, offering a private setting and a thoughtfully designed floor plan with natural separation of spaces, ideal for guests, multi-generational living, or work-from-home flexibility. Major updates have already been completed, including new vinyl windows throughout, new gutters, a new gas range and fireplace and new water heater, along with additional improvements (full list available upon request).Vaulted ceilings and skylights fill the main living areas with natural light, while a welcoming entry opens to a spacious living and dining area connected to the kitchen. Just beyond, a second, more intimate living room with gas fireplace and direct access to the back deck creates a comfortable space for relaxing or gathering.vThe layout is designed to offer both connection and privacy, with the primary suite positioned on one side of the home along with an additional bedroom and half bath, while two more bedrooms and a full bath are located on the opposite side. An upstairs loft with a full bath adds versatility as a guest suite, 5th bedroom, or dedicated office or hobby space. Outdoor spaces are designed for easy, low-maintenance living with a covered front porch, mature landscaping with native plants and perennials, and a large Trex deck overlooking the private backyard. The backyard’s orientation helps keep it cooler in the afternoons, making it an ideal space to enjoy evenings outdoors. Enjoy access to Charbonneau’s amenities, including four pools, a dog park, bocce ball and basketball courts, scenic walking paths, and optional access to the community gym and golf facilities with low HOA fees.
Listing Provided Courtesy of Nick Shivers, eXp Realty, LLC
280779351
SingleFamilyResidence
43 DOM
5
7405.2 SqFt
3.5
2206
1987
Clackamas
00825398
Eccles
Baker Prairie
Canby
Residential
SingleFamilyResidence
2443 CHARBONNEAU SINGLE FAMILY EAST THIRD ADD LT 135
Listing Provided Courtesy of Nick Shivers, eXp Realty, LLC
PDXA1 Realty Group data last checked: May 01, 2026 04:07 | Listing last modified May 01, 2026 00:13,
Source:
317
1889
0
2206
tax
2206
1/Gas
5
3
1
3.5
Composition
2, Attached
Stories1,Stories2
Driveway
1
1987
No
Cedar, WoodSiding
CrawlSpace
CrawlSpace
ConcretePerimeter,Pi
DoublePaneWindows
HardwoodFloors, Skylight
BuiltinRange, Dishwasher, Disposal, GasAppliances, Microwave, Quartz, StainlessSteelAppliance
CeilingFan, HardwoodFloors, HighCeilings, LaminateFlooring, Laundry, Quartz, Skylight, VaultedCeiling, Wallt
CoveredDeck, CoveredPatio, Deck, Fenced, Porch, Sprinkler, Yard
GarageonMain, MainFloorBedroomBath, MinimalSteps, NaturalLighting, RollinShower, UtilityRoomOnMain, Walkin
CentralAir
Electricity
ForcedAir
PublicSewer
Electricity
Gas
6789.16
1
2280 / Annually
Cash,Conventional,FHA,VALoan
03-19-2026
No
No
43
43
Cash,Conventional,FHA,VALoan
$700,000
$700,000
May 01, 2026 00:13
Listing courtesy of eXp Realty, LLC.
The content relating to real estate for sale on this site comes in part from the IDX program of the RMLS of Portland, Oregon.
Real Estate listings held by brokerage firms other than this firm are marked with the RMLS logo, and
detailed information about these properties include the name of the listing's broker.
Listing content is copyright © 2019 RMLS of Portland, Oregon.
All information provided is deemed reliable but is not guaranteed and should be independently verified.
PDXA1 Realty Group data last checked: May 01, 2026 04:07 | Listing last modified May 01, 2026 00:13.
Some properties which appear for sale on this web site may subsequently have sold or may no longer be available.
Venkat is a very good negotiator. He was quick to respond, when I had questions. He came to all the meetings with the seller and provided valuable inputs on inspections and mortgage options. Overall, I was impressed and would love to work with him again.
Venkat is very professional and has tremendous knowledge in the real estate industry. He was always available to discuss and made time to visit the construction site several times during the course. I was looking at a new construction and had to wait for the property to be built.
Muthu has good knowledge about the community and understands the needs of his customers. He helped us sell our house in record time and followed up with the buyer and the agent until the complete closure. We received multiple offers and Muthu negotiated well and helped us decide on the buyer.
Venkat Muthu is a wonderful person to go with. Very friendly and advices as per the need and gives his service and support where and when needed and some times going beyond. Really happy to share the review and I highly recommend if anyone is looking for any homes.
Venkat is great to work with as realtor. He is very patient and listens to the requests of the buyer or seller and doesn’t push as t any point of time. He has a good understanding of the market situation and location for investments as well. All this comes from experience with him recently buying a home.
Whether you’re looking to buy your dream home, sell your property for the best price, or explore investment opportunities, PDXA1 Realty Group is here to help. With expertise, personalized service, and a commitment to your goals, we’ll guide you every step of the way. Contact us today at (971) 330-1856 let’s start the conversation!
© PDXA1 Realty Group | Powered by Taigha