$395000
Price cut: $20K (04-02-2026)
2 Bed
2.5 Bath
1320 SqFt
16 DOM
Built: 2004
Status: Active
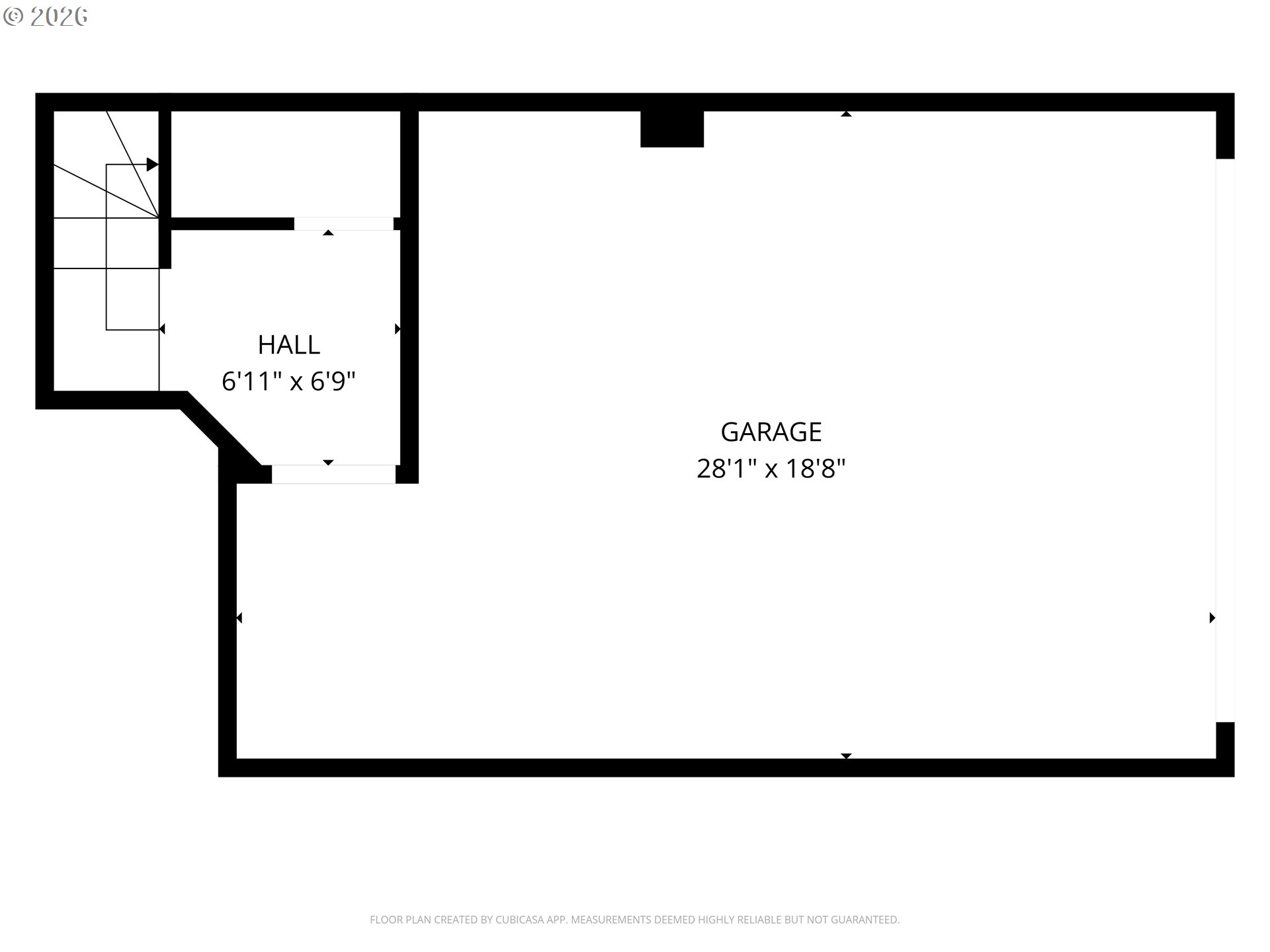
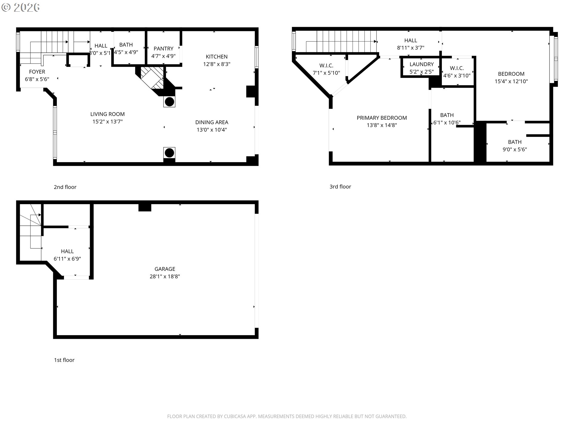
*HUGE price improvement!* Welcome to this beautifully updated condo offering a highly desirable dual-suite layout, perfect for comfort and privacy. Each of the two spacious bedrooms features its own full bathroom and walk-in closet, with a conveniently located laundry area situated between the suites for added ease.Fresh interior paint and brand-new carpet create a clean, move-in-ready feel throughout. Enjoy seamless indoor–outdoor living with covered patios off both the primary suite and dining area—ideal for relaxing or entertaining year-round.An oversized two-car garage provides ample space for parking, storage, or even a workshop setup. Situated directly across from Memorial Park, this home offers immediate access to scenic trails, pickleball courts, a dog park, and picnic areas.The community enhances your lifestyle with HOA-covered water and sewer, along with a membership to Edge Family Fitness, featuring a pool and fully equipped gym with state-of-the-art equipment for year-round recreation. Don’t miss this opportunity to enjoy low-maintenance living in a prime location with exceptional amenities.
Listing Provided Courtesy of LeAndra Isenberger, MORE Realty
270707741
Condominium
16 DOM
2
2.5
1320
2004
Clackamas
05015823
Boones Ferry
Wood
Wilsonville
Residential
Condominium
CONDOMINIUM VILLAGE ESTATES CONDOMINIUM #2 4078 UNIT 6
Listing Provided Courtesy of LeAndra Isenberger, MORE Realty
PDXA1 Realty Group data last checked: Apr 10, 2026 04:56 | Listing last modified Apr 03, 2026 20:18,
Source:
570
709
41
1320
tax id
1279
1/Gas
2
2
1
2.5
2, Attached
CommonWall,Townhouse
OnStreet
3
2004
No
T111Siding
Other
Other
ConcretePerimeter,Sl
VinylFrames
AthleticCourt, Basket
FreeStandingRefrigerator, Pantry, StainlessSteelAppliance, Tile
LuxuryVinylPlank, WasherDryer
AthleticCourt, Patio, Sauna
CentralAir
Gas
ForcedAir
PublicSewer
Gas
Electricity, Gas
4727.62
1
367 / Month
0
Cash,Conventional
03-19-2026
No
No
16
22
Cash,Conventional
$415,000
$395,000
Apr 03, 2026 20:18
Listing courtesy of MORE Realty.
The content relating to real estate for sale on this site comes in part from the IDX program of the RMLS of Portland, Oregon.
Real Estate listings held by brokerage firms other than this firm are marked with the RMLS logo, and
detailed information about these properties include the name of the listing's broker.
Listing content is copyright © 2019 RMLS of Portland, Oregon.
All information provided is deemed reliable but is not guaranteed and should be independently verified.
PDXA1 Realty Group data last checked: Apr 10, 2026 04:56 | Listing last modified Apr 03, 2026 20:18.
Some properties which appear for sale on this web site may subsequently have sold or may no longer be available.
Venkat is a very good negotiator. He was quick to respond, when I had questions. He came to all the meetings with the seller and provided valuable inputs on inspections and mortgage options. Overall, I was impressed and would love to work with him again.
Venkat is very professional and has tremendous knowledge in the real estate industry. He was always available to discuss and made time to visit the construction site several times during the course. I was looking at a new construction and had to wait for the property to be built.
Muthu has good knowledge about the community and understands the needs of his customers. He helped us sell our house in record time and followed up with the buyer and the agent until the complete closure. We received multiple offers and Muthu negotiated well and helped us decide on the buyer.
Venkat Muthu is a wonderful person to go with. Very friendly and advices as per the need and gives his service and support where and when needed and some times going beyond. Really happy to share the review and I highly recommend if anyone is looking for any homes.
Venkat is great to work with as realtor. He is very patient and listens to the requests of the buyer or seller and doesn’t push as t any point of time. He has a good understanding of the market situation and location for investments as well. All this comes from experience with him recently buying a home.
Whether you’re looking to buy your dream home, sell your property for the best price, or explore investment opportunities, PDXA1 Realty Group is here to help. With expertise, personalized service, and a commitment to your goals, we’ll guide you every step of the way. Contact us today at (971) 330-1856 let’s start the conversation!
© PDXA1 Realty Group | Powered by Taigha